< Back to search results
Sprowston Mews, Forest Gate
Petty Son & Prestwich are delighted to offer for rent this exceptional, modern, detached four-bedroom property. Positioned 0.3 miles from Forest Gate Station and the Elizabeth Line and 1 mile from Woodgrange Park Station.
- Detached
- Four bedrooms
- Underfloor heating
- Fully fitted kitchen
- Three floors
- Laundry room
- Private Garden
- 0.3 miles from Forest Gate Station
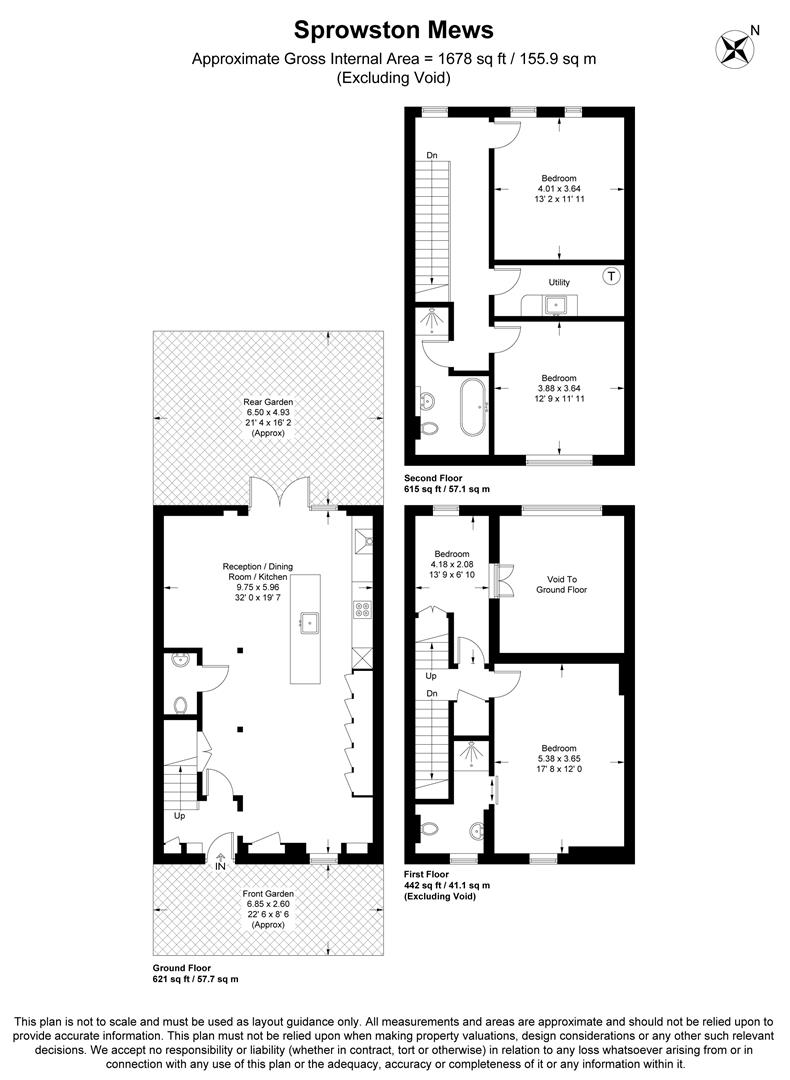
This impressive property, shortlisted for the prestigious 'RIBA Award' 2026, spans 1678 sq feet over three floors. Comprising of a ground floor open-plan living space of impeccable design which is flooded with natural daylight throughout. The kitchen/dining/living area has solid wooden sleek kitchen cabinets and state of the art Neff, Bosch and Samsung appliances. The centre island is a fabulous feature for cooking and entertaining guests and there is the added benefit of a ground floor WC, which is cleverly hidden away, behind the wooden panelled walls. Double glass doors lead from the kitchen onto a private low maintenance courtyard garden.
To the upper floors you will find a laundry room positioned on the first floor which houses a Zanussi washing machine and has ample cupboard/storage space as well as a wash basin. There are three generously sized double bedrooms, one of which has an en suite and a smaller single bedroom. The family bathroom on the 2nd floor has beautifully tiled walls and a large bathtub. There is underfloor heating on the ground floor and in both bathrooms and the property has an air ventilation system throughout.
Available 1st April 2026
Unfurnished
1 Week Holding Deposit: £715
5 Week Total Deposit: £3576
EPC Rating: B83
Council Tax Band: D
Reception Room/Kitchen 32'0" x 19'7" (9.75m x 5.97m)
Bedroom 17'8" x 12'0" (5.38m x 3.66m)
Bedroom 13'9" x 6'10" (4.19m x 2.08m)
Bedroom 12'9" x 11'11" (3.89m x 3.63m)
Bedroom 13'2" x 11'11" (4.01m x 3.63m)
NEW ASSURED SHORTHOLD TENANCIES (ASTs) SIGNED ON OR AFTER 1 JUNE 2019*
Holding Deposit (per tenancy) - One week's rent. This is to reserve a property. Please Note: This will be withheld if any relevant person (including any guarantor(s)) withdraw from the tenancy, fail a Right-to-Rent check, provide materially significant false or misleading information, or fail to sign their tenancy agreement (and / or Deed of Guarantee) within 15 calendar days (or other Deadline for Agreement as mutually agreed in writing).
Security Deposit (per tenancy and where Rent is under £50,000 per year) - Five weeks' rent. This covers damages or defaults on the part of the tenant during the tenancy.
Security Deposit (per tenancy and where Rent of £50,000 or over per year) - Six weeks' rent. This covers damages or defaults on the part of the tenant during the tenancy.
Unpaid Rent - Interest at 3% above the Bank of England Base Rate from Rent Due Date until paid in order to pursue non-payment of rent. Please Note: This will not be levied until the rent is more than 14 days in arrears.
Lost Key(s) or other Security Device(s) - Tenants are liable to the actual cost of replacing any lost key(s) or other security device(s). If the loss results in locks needing to be changed, the actual costs of a locksmith, new lock and replacement keys for the tenant, landlord any other persons requiring keys will be charged to the tenant. If extra costs are incurred there will be a charge of £15 per hour (inc. VAT) for the time taken replacing lost key(s) or other security device(s).
Variation of Contact (Tenants Request) - £50 (inc. VAT) per agreed variation. To cover the costs associated with taking landlord's instructions as well as the preparation and execution of new legal documents.
Change of Sharer (Tenant's Request) - £50 (inc. VAT) per replacement tenant or any reasonable costs incurred if higher. To cover the costs associated with taking landlord's instructions, new tenant referencing and Right-to-Rent checks, deposit registration as well as the preparation and execution of new legal documents.
Early Termination (Tenant's Request) - Should the tenant wish to leave their contract early, they shall be liable to the landlord's costs in re-letting the property as well as all rent due under the tenancy until the start date of the replacement tenancy. These costs will be no more than the maximum amount of rent outstanding on the tenancy.
Please ask a member of staff if you have any questions about our fees
-
Share this Property
View
Let available date
01/04/2026
Deposit
Ask Agent
Min. Tenancy
Ask Agent
Let type
Long Term
Furnish type
Un-Furnished
Council Tax Band
Band D
Parking
Ask Agent
Garden
Ask Agent
Accessibility
Ask Agent
Electric
Ask Agent
Water
Ask Agent
Heating
Ask Agent
Broadband
Ask Agent
Sewerage
Ask Agent
Private rights of way
Ask Agent
Public rights of way
Ask Agent
Listed property
Ask Agent
Restrictions
Ask Agent
Flooded in last 5 years
Ask Agent
Flood defenses
Ask Agent
Source of flood
Ask Agent

