< Back to search results
Malcolm Way, Snaresbrook
Boasting a private patio leading into the communal gardens, enjoying a good deal of privacy, Petty Son and Prestwich are delighted to offer to market this generously proportioned three bedroom ground floor apartment close to Snaresbrook Station.
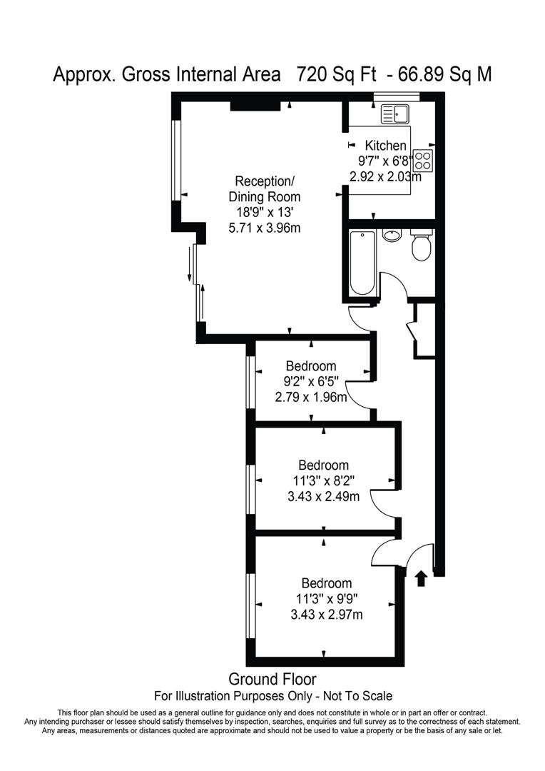
- Ground floor apartment
- Approximately 720 Square Feet
- Quiet, cul-de-sac location
- Three bedrooms
- Garage en-bloc
- 0.2 miles to Wanstead High Street & Snaresbrook Station
- Communal gardens
Nestled away in a quiet, tree lined turning, Malcolm Way is surrounded by the open green spaces of Epping Forest and is just steps away from the picturesque Eagle Pond. You are just 0.2 miles from Snaresbrook Central Line Station with fast access to the City and West End, making it ideal for those needing regular, convenient access into Central London. You are also moments away from the popular Wanstead High Street, which offers a large array of independent retailers, coffee shops and restaurants.
Offering a larger than average 720 Square Feet of accommodation, this three-bedroom apartment offers two good sized double bedrooms, and an equally well proportioned single bedroom, which could also be used as a home office. A wide entrance hall leads you to the spacious reception area, which also provides enough space to comfortably accommodate a dining table. The kitchen is fitted with white base and wall units, complemented by contrasting work surfaces and integrated appliances including oven, hob and extractor. A fully tiled bathroom with white suite completes the accommodation. The property benefits from a garage en-bloc, residents permit parking and well maintained communal gardens surrounding the development. There is no onward chain.
Permission has been granted (subject to conditions) for an additional single storey consisting of 4 new flats (Ref: 0690/21). Permission has been granted for the erection of new build houses by the neighbouring block (Ref: 1536/19).
EPC Rating: C73
Council Tax Band: D
Lease Information: 210 years from 24th June 1979 (163 years currently remain)
Service Charge: £2040 per annum
Ground Rent: £90 per annum
An Anti-Money Laundering fee will be applicable to all purchasers at a cost of £18.00 per person.
-
Share this Property
View
Council Tax Band
Band D
Parking
Ask Agent
Garden
Ask Agent
Accessibility
Ask Agent
Tenure
Leasehold
Electric
Ask Agent
Water
Ask Agent
Heating
Ask Agent
Broadband
Ask Agent
Sewerage
Ask Agent
Ground rent
£90
Annual service charge
£2040
Length of lease
163 years left
Private rights of way
Ask Agent
Public rights of way
Ask Agent
Listed property
Ask Agent
Restrictions
Ask Agent
Flooded in last 5 years
Ask Agent
Flood defenses
Ask Agent
Source of flood
Ask Agent

