< Back to search results
Halstead Road, Wanstead
*SOLD BY PETTY SON & PRESTWICH* Located in the sought-after Wanstead Village area, known for its attractive tree-lined streets and characterful period homes, this semi-detached period cottage offers a peaceful village-style setting.
- Semi-detached cottage
- Two double bedrooms
- Large first floor bathroom
- Wanstead Village location
- Through lounge
- Kitchen with large utility room
- Potential to extend into the loft and rear (STPP)
- Chain free
- Within easy reach of a fantastic range of excellent schooling
- 0.2 Miles from Wanstead High Street
Wanstead High Street is just a short walk away (approximately 0.2 miles), offering a range of shops, cafés and local amenities. Both Wanstead and Snaresbrook Central Line stations are also within easy reach (around 0.3 miles and 0.5 miles respectively), providing convenient access into Central London. Nightingale Lane is only moments away (approximately 0.2 miles) and features a small parade of local shops, two popular neighbourhood pubs and a charming green.
Further transport links include regular bus routes and straightforward road connections to the M11, M25 and North Circular.
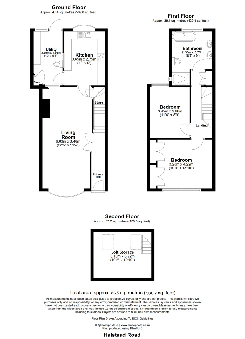
The property has been extended into the side return creating a more generous ground floor footprint, while still offering further potential to extend to the rear and into the loft (STPP). The original two reception rooms have been opened to form a bright and spacious through lounge, providing clearly defined living and dining areas while retaining a fireplace in the rear section of the room which acts as a focal point.
The rear kitchen is well supported by a substantial utility room, ideal for housing larger appliances such as a washing machine, tumble dryer and dishwasher. This keeps the kitchen itself focused on cooking, storage and entertaining. A convenient ground floor W.C. is also positioned within the utility space.
Upstairs, the first floor offers two well-proportioned double bedrooms, the principal of which spans the full width of the property and benefits from an extensive run of fitted wardrobes, providing excellent storage.
The spacious family bathroom easily accommodates a roll-top bath, twin sink vanity unit, W.C. and a large separate shower enclosure. Just outside the bathroom, a generous linen cupboard on the landing provides additional storage for towels and household essentials.
The loft has been fully boarded and fitted with power, along with twin skylights that provide natural light and ventilation. Currently accessed via a permanent staircase, the space offers excellent, easily accessible storage and presents clear potential for a future loft conversion (STPP).
To the rear, the garden is accessed via the utility room and is simply arranged with a patio leading onto a lawn, complemented by a raised side flower bed.
There is a shared, lockable side gate providing access to the side of the property, offering a practical space for secure bike storage. Subject to a reworking of the current side return layout, direct side access to the property could also be reinstated if desired.
EPC Rating: D63
Council Tax Band: E
An Anti-Money Laundering fee will be applicable to all purchasers at a cost of £18.00 per person.
-
Share this Property
View
Council Tax Band
Band E
Parking
Ask Agent
Garden
Ask Agent
Accessibility
Ask Agent
Tenure
Freehold
Electric
Ask Agent
Water
Ask Agent
Heating
Ask Agent
Broadband
Ask Agent
Sewerage
Ask Agent
Private rights of way
Ask Agent
Public rights of way
Ask Agent
Listed property
Ask Agent
Restrictions
Ask Agent
Flooded in last 5 years
Ask Agent
Flood defenses
Ask Agent
Source of flood
Ask Agent

