< Back to search results
Wyndlawn, St. Mary's Avenue, Wanstead
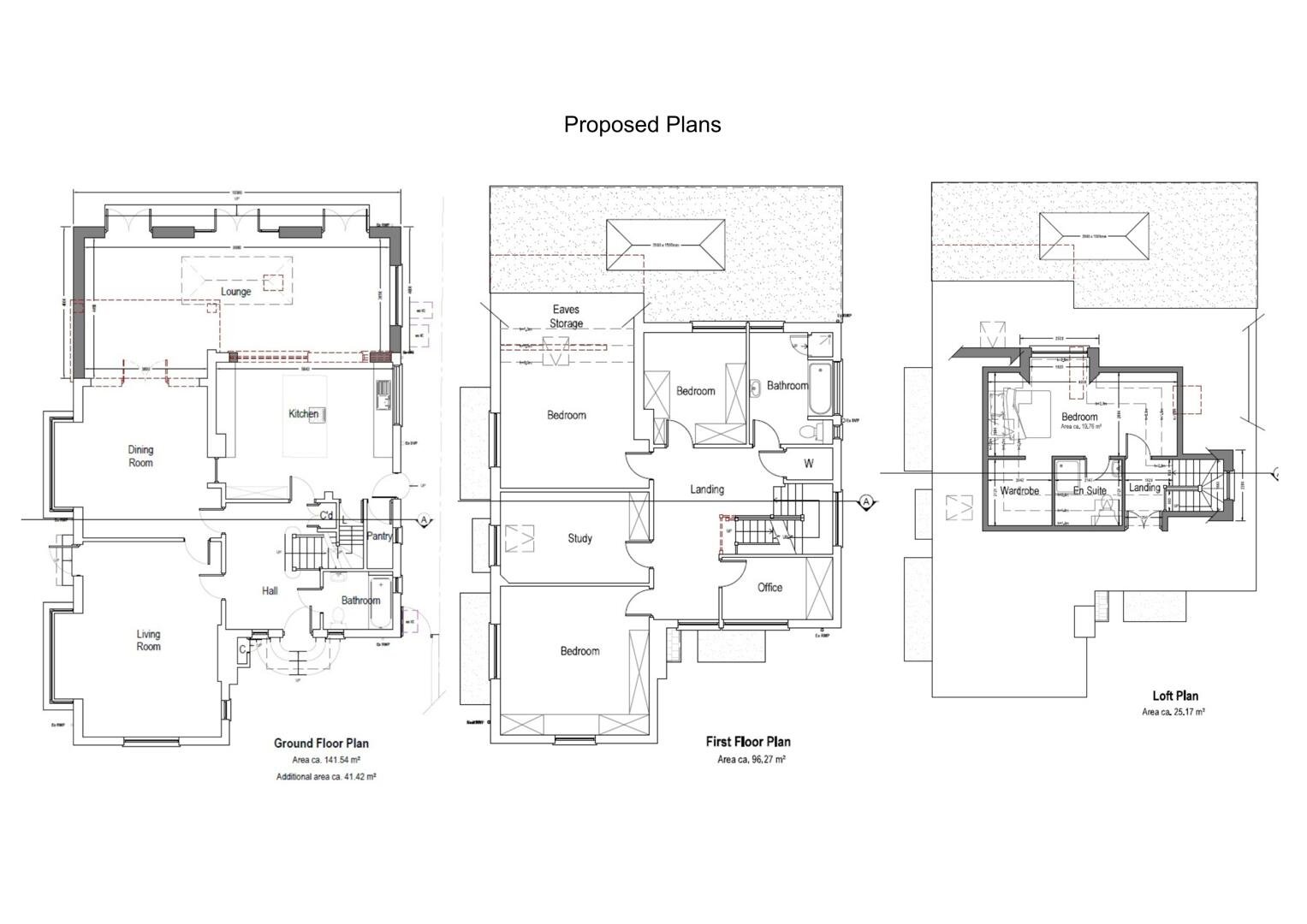
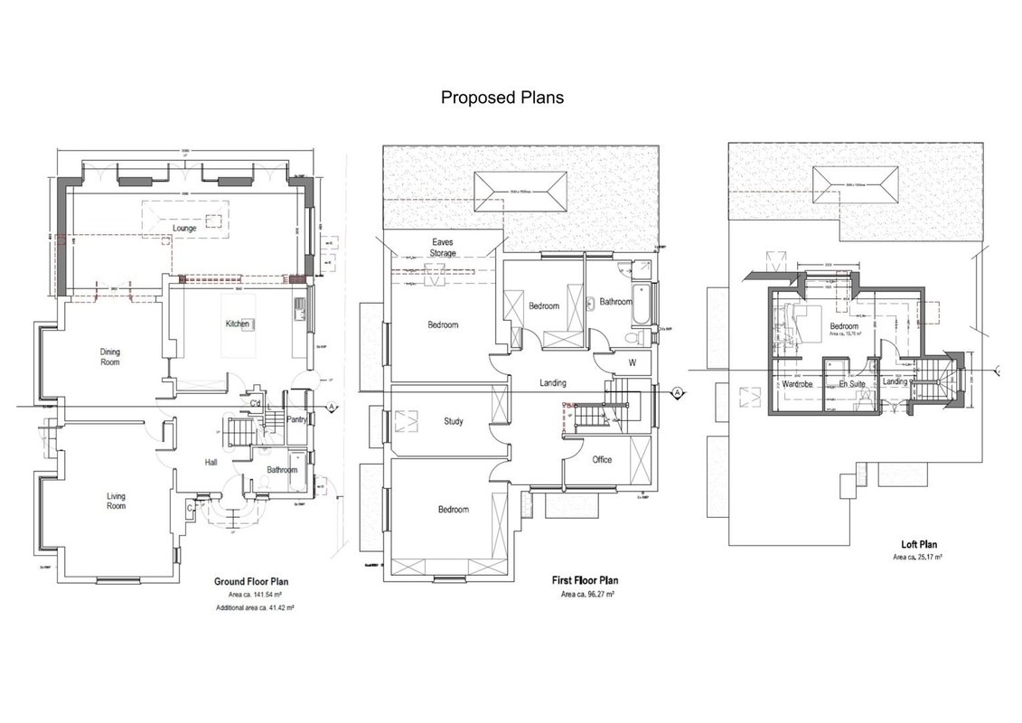
Petty Son & Prestwich are excited to offer an exceptional opportunity to secure a five bedroom detached home in Wanstead’s most prestigious address. Full planning is granted for significant extension to the current home including a ground floor and loft extensions.
- Wanstead’s most prestigious road
- Planning granted for significant extension work (Redbridge Planning Reference – 0608/25)
- Exisiting property spanning approximately 2,371 Square Feet
- Chain free
- South/Westerly garden
- 0.3 Miles to Wanstead Station and Wanstead Park
Discreetly nestled near the beginning to what is widely considered Wanstead’s most premier address, “Wyndlawn” presents a rare and remarkable opportunity to acquire a detached residence on St. Mary’s Avenue – a wide, tree-lined boulevard graced with imposing homes and rich architectural character. Properties on this coveted avenue seldom come to market, underscoring its enduring appeal.
Located between the vibrant Wanstead High Street, Wanstead’s Central Line Tube Station and the revered Grade I listed St. Mary’s Church, Wyndlawn is an elegant 1926-built residence. It currently offers approx. 2,371 sq ft of existing accommodation, with the benefit of full planning permission being granted for a single storey rear extension plus loft extension (Planning Ref: 0608/25)
St. Mary’s Avenue lies within a protected Conservation Area, surrounded by open green spaces and premier sporting clubs. Green space is all encompassing in this conservation area, with Wanstead’s Cricket, Tennis, Bowling and Golf Clubs all adjacent to the property (with grounds visible from the first floor). Additionally, Wanstead Park, a former hunting ground of Henry VII, offers ornamental lakes and grounds for scenic walks. The commencement of Epping Forest (at the end of Overton Drive) is only 0.3 miles away, also providing extensive walking opportunities and significant bridleway access.
A wrought iron gated frontage opens to a generous landscaped front garden. Inside, a wide reception hall is anchored by an elegant, original staircase. The accommodation currently comprises a formal sitting room, spacious dining room, and a character-filled retro kitchen/diner, with a cellar and ground floor bathroom also accessible.
To the first floor, a substantial landing area leads to five bedrooms and a family bathroom. The principal bedroom enjoys Chippendale-fitted furniture with a good deal of surrounding floor space and dual aspect windows. There are two further double bedrooms, one providing access to good-sized eaves storage; another bedroom is currently used as a combination of dressing room and single bedroom and there is a further smaller study / potential single bedroom. The retro family bathroom comfortably accommodates a bathroom suite and separate shower, with natural light flooding in from a combination of windows and glass block tiles. The loft provides ample storage space or opportunity to expand the already generous living accommodation, with the benefit of full planning permission for a loft extension.
Externally, a raised veranda area accessible directly from the dining room, provides the perfect place to relax, dine and entertain al fresco, whilst the remainder is laid to lawn, bordered by established shrubs and trees.
Approved plans allow for a dramatic transformation of the rear, creating a stunning open-plan living space with oversized skylights and multiple French doors framing the mature South-Westerly garden.
This year marks the centenary of Wyndlawn.
Council Tax Band: G
EPC Rating: E46
An Anti-Money Laundering fee will be applicable to all purchasers at a cost of £18.00 per person.
All room sizes below are for the existing home.
Reception Room 20'4" x 17'5" (6.2m x 5.31m)
Dining Room 15'11" x 15'10" (4.85m x 4.83m)
Dining Room/Kitchen 18'5" x 14'3" (5.61m x 4.34m)
Bedroom 14'7" x 14'5" (4.44m x 4.39m)
Bedroom 14'7" x 13'7" (4.44m x 4.14m)
Bedroom 14'7" x 9'1" (4.44m x 2.77m)
Bedroom 11'0" x 8'11" (3.35m x 2.72m)
Bedroom 11'2" x 5'11" (3.4m x 1.8m)
-
Share this Property
View
Council Tax Band
Band G
Parking
Ask Agent
Garden
Ask Agent
Accessibility
Ask Agent
Tenure
Freehold
Electric
Ask Agent
Water
Ask Agent
Heating
Ask Agent
Broadband
Ask Agent
Sewerage
Ask Agent
Private rights of way
Ask Agent
Public rights of way
Ask Agent
Listed property
Ask Agent
Restrictions
Ask Agent
Flooded in last 5 years
Ask Agent
Flood defenses
Ask Agent
Source of flood
Ask Agent


