< Back to search results
Hollybush Close, Snaresbrook
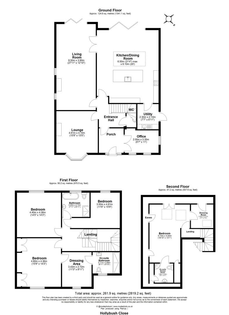
Set behind a quiet cul-de-sac in sought-after Wanstead, this refined detached residence features four double bedrooms, two elegant dressing rooms, three bathrooms, and a private swimming pool.
- Large detached residence
- Quiet cul-de-sac location
- Four double bedrooms, two dressing rooms and three bathrooms
- Additional ground floor W.C and separate utility room
- South Westerly garden with heated swimming pool
- Two large formal receptions
- Dedicated home office
- Live in family-kitchen with recently installed island
- Well presented throughout
- 0.3 Miles to Snaresbrook Station and Wanstead High Street
Located toward the end of Hollybush Close, the property enjoys an exceptionally secluded setting while remaining conveniently positioned just 0.3 miles from Snaresbrook Station and Wanstead High Street, with its excellent selection of independent shops, cafés, and bars. The area’s most highly regarded schools are also within easy reach, with Forest School and Snaresbrook Preparatory located approximately 0.5 miles away, while Wanstead Church School and Snaresbrook Primary are both around 0.8 miles from the property.
Positioned on the right-hand side of the cul-de-sac, the home benefits from a desirable south-westerly rear aspect, allowing the garden to enjoy sunlight throughout the day. Designed with entertaining in mind, the landscaped garden centres around a large heated swimming pool, complemented by a combination of decking, patio, and lawn - ideal for both social gatherings and quiet relaxation.
Internally, the house is defined by its generous proportions and high ceilings. Accommodation begins with an entrance porch leading into an equally impressive reception hall, with a home office immediately accessible. The expansive family kitchen/dining room has also been extended to an impressive 20 ft × 21 ft 4 in, creating a highly functional and sociable space at the heart of the home. A recently installed central island forms the focal point of this naturally light-filled room, enhanced by bi-fold doors and a large overhead skylight. The island incorporates storage to both sides, a breakfast bar, dishwasher, drinks fridge, and sink. Surrounding cabinetry comfortably accommodates a large American-style fridge/freezer alongside a range of fitted appliances, while a separate utility room discreetly houses the noisier appliances and provides a secondary sink.
Arranged across the first and second floors are two principal bedroom suites, each offering a generous double bedroom, contemporary en-suite bathroom, and dedicated dressing room. The second principal suite occupies the entirety of the second floor and further benefits from extensive eaves storage. Two additional double bedrooms and an impressive family bathroom, featuring a separate bath and large wet-room-style shower, complete the first-floor accommodation. Further benefits include a large driveway and gated side access to both sides of the property.
Please note that the swimming pool image has been digitally enhanced using AI to remove the pool cover for presentation purposes. The pool may differ from what is shown. Current, unedited photos are available upon request.
EPC Rating: D68
Council Tax Band: G
An Anti-Money Laundering fee will be applicable to all purchasers at a cost of £18.00 per person.
-
Share this Property
View
Council Tax Band
Band G
Parking
Ask Agent
Garden
Ask Agent
Accessibility
Ask Agent
Tenure
Freehold
Electric
Ask Agent
Water
Ask Agent
Heating
Ask Agent
Broadband
Ask Agent
Sewerage
Ask Agent
Private rights of way
Ask Agent
Public rights of way
Ask Agent
Listed property
Ask Agent
Restrictions
Ask Agent
Flooded in last 5 years
Ask Agent
Flood defenses
Ask Agent
Source of flood
Ask Agent

