< Back to search results
Buckingham Road, Wanstead
A rare and exciting opportunity to market, this charming 1930s semi-detached residence is offered with a substantial parcel of land to the side (held on a separate title) which has already been granted planning permission for the construction of a striking five-bedroom detached home.
- Three bedroom semi-detached home with development plot
- Large plot
- Highly sought after Counties Estate Conservation Area
- Planning permission granted for a five bedroom detached family home
- Open views to the rear
- Close proximity to excellent schooling
- Substantial Easterly garden
- 0.5 Miles to Wanstead Station
- Chain free
Positioned within the highly sought-after Counties Estate in Wanstead, Buckingham Road takes its name from the historic county of Buckinghamshire. This prestigious address forms part of an exclusive collection of elegant homes set within a charming leafy conservation area, where beautifully preserved Edwardian architecture and picturesque tree-lined avenues create one of Wanstead’s most desirable residential settings.
Wonderfully peaceful yet exceptionally well connected, this particular home enjoys a prime position within easy reach of Wanstead Station (0.5 miles) and Snaresbrook Station (0.7 miles), offering swift and convenient access into Central London. The property is also ideally placed for a superb selection of highly regarded local schools and nurseries. Within close proximity are Nightingale Primary School and The Grove Montessori Nursery (both 0.5 miles away), along with Wanstead Church School (around 0.6 miles) - Each is recognised by Ofsted with ratings of Good or Outstanding, making the area particularly appealing for families seeking exceptional educational options.
The existing three-bedroom semi-detached property would benefit from modernisation, yet presents an outstanding canvas for enhancement. Subject to the usual consents (STPP), there is clear potential to extend to the rear and convert the loft, significantly increasing the living accommodation while maximising the property’s uninterrupted views over open fields to the rear.
Internally the home follows the classic layout typical of this era. The ground floor offers two generous reception rooms, a kitchen and a convenient ground floor W.C., while the first floor comprises three well-proportioned bedrooms and a family bathroom, providing excellent foundations for a thoughtful renovation.
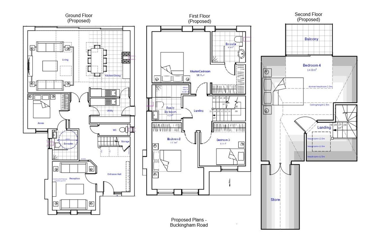
A defining feature of this offering is the impressive side plot, currently accommodating a substantial driveway and garden space. The plot benefits from granted planning permission for a substantial detached residence, with the proposed frontage spanning approximately 20 feet, widening to a maximum of around 60 feet and extending to an overall depth of roughly 130 feet. The approved plans envision an exceptional family home comprising five bedrooms (four of which are doubles), alongside three bathrooms, guest W.C., formal reception room, and impressive open-plan family kitchen and living space complete with a separate utility room.
Further details and the approved plans can be viewed via the planning portal of London Borough of Redbridge under the relevant planning reference 0452/25.
EPC Rating: TBC
Council Tax Band: E
An Anti-Money Laundering fee will be applicable to all purchasers at a cost of £18.00 per person.
-
Share this Property
View
Council Tax Band
Band E
Parking
Ask Agent
Garden
Ask Agent
Accessibility
Ask Agent
Tenure
Freehold
Electric
Ask Agent
Water
Ask Agent
Heating
Ask Agent
Broadband
Ask Agent
Sewerage
Ask Agent
Private rights of way
Ask Agent
Public rights of way
Ask Agent
Listed property
Ask Agent
Restrictions
Ask Agent
Flooded in last 5 years
Ask Agent
Flood defenses
Ask Agent
Source of flood
Ask Agent
