< Back to search results
Langley Drive, Wanstead
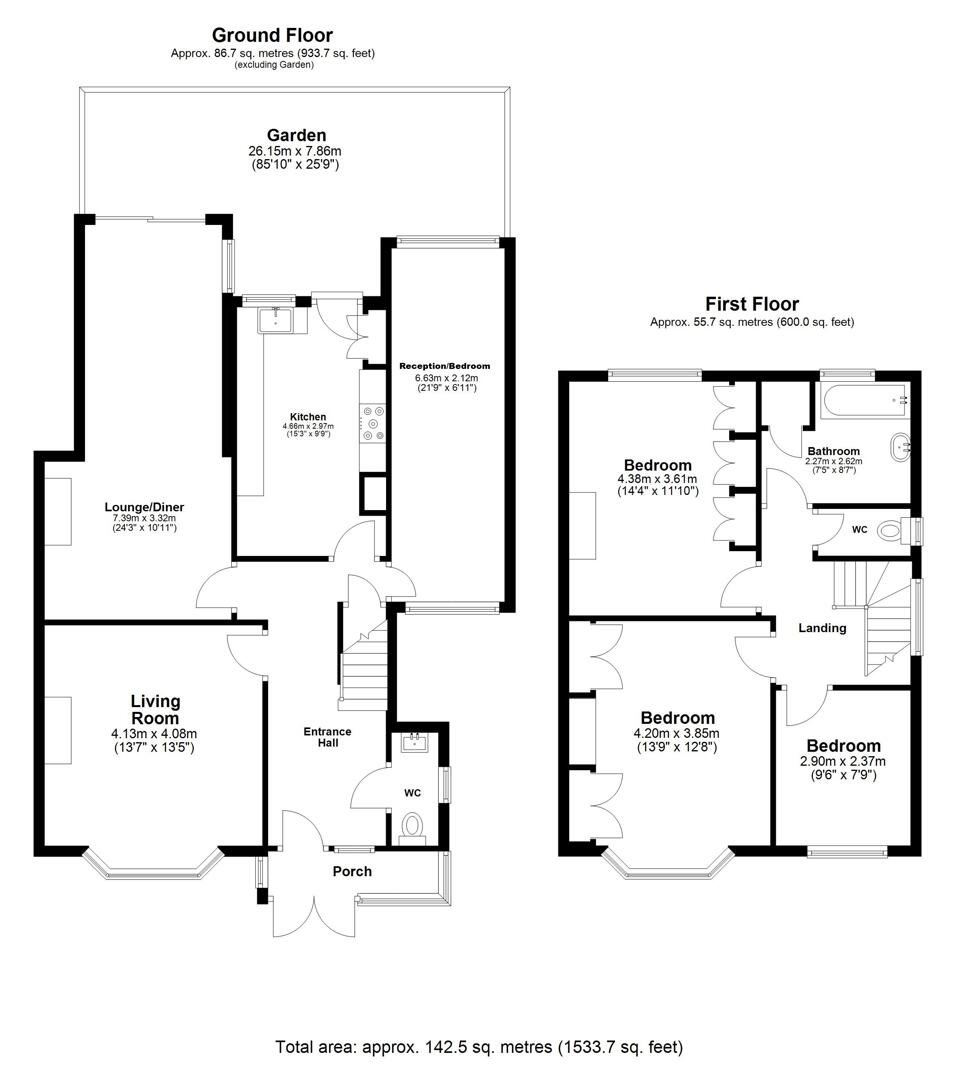
Petty Son & Prestwich are delighted to present this attractive three bedroom, semi-detached family home situated on the prestigious Langley Drive within Wanstead’s highly sought after Warren Estate.
- Covered parking space
- Semi-detached family home
- Three / Four bedrooms
- Three reception rooms
- Sought-after Warren Estate
- Original character throughout
- Recently fitted, modern kitchen
- Charming rear garden
- Off road parking for two cars
- Potential to extend (STPC)
This prime location places you directly on the doorstep of Wanstead Park and the neighbouring Wanstead Golf Club, offering a picturesque setting that feels worlds away from the city while remaining incredibly convenient. For families and commuters alike, the property is perfectly positioned within walking distance of excellent local schools and nurseries, with the vibrant High Street and Central Line Station just a short half mile stroll away.
Perched near the end of Langley drive, the home enjoys a prominent position opposite St Mary’s Avenue with the historic St Mary’s Church providing a beautiful landmark at the end of the road. Inside, the property is defined by exceptionally well-proportioned rooms and a wealth of original character.
You are welcomed by a spacious and inviting entrance hall featuring high quality Amtico flooring and stunning original stained glass windows that offer a graceful nod to the home’s heritage alongside the original staircase banisters.
The ground floor layout is designed for flexible family living, featuring a bright front sitting room with a large bay window and a truly impressive rear reception room that spans over twenty four feet in depth. This vast space opens directly onto the rear garden through sliding doors, creating a seamless indoor outdoor flow.
The recently fitted modern kitchen is finished to a high standard with elegant quartz countertops and a sleek design, yet it offers the exciting potential to be combined with the rear reception room to create a magnificent open plan family hub.
The versatility of the home is further enhanced by a converted garage which now serves as a large additional reception room. Currently used as a fourth bedroom, this space is ideal for guest accommodation, a dedicated home office, a gym, or a playroom. A practical ground floor cloakroom is also conveniently accessible from the main hallway.
Moving to the first floor, you will find three generous bedrooms, including a principal bedroom with fitted wardrobes. The large loft space provides excellent storage and offers the significant possibility of further expansion through a loft conversion, subject to the necessary planning permissions.
The exterior of the property is equally charming, featuring a neatly appointed driveway for off road parking to the front. The rear garden has been well maintained with a combination of patio and lawn areas edged by mature flower beds. At the far end, a tranquil secret garden provides a private and peaceful retreat for relaxation.
This home represents a rare opportunity to acquire a substantial property in a premier location with the scope to tailor and extend the space to suit your long term needs.
EPC Rating: D66
Council Tax Band: F
An Anti-Money Laundering fee will be applicable to all purchasers at a cost of £18.00 per person.
-
Share this Property
View
Council Tax Band
Band F
Parking
Ask Agent
Garden
Ask Agent
Accessibility
Ask Agent
Tenure
Freehold
Electric
Ask Agent
Water
Ask Agent
Heating
Ask Agent
Broadband
Ask Agent
Sewerage
Ask Agent
Private rights of way
Ask Agent
Public rights of way
Ask Agent
Listed property
Ask Agent
Restrictions
Ask Agent
Flooded in last 5 years
Ask Agent
Flood defenses
Ask Agent
Source of flood
Ask Agent

