< Back to search results
St. Martin's Avenue, East Ham
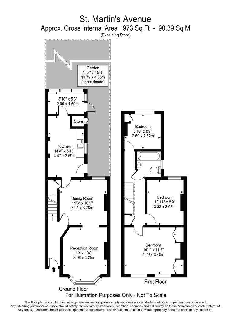
*SOLD BY PETTY SON & PRESTWICH* Petty Son & Prestwich are pleased to offer this three-bedroom Victorian mid-terrace home, ideally located close to good schools, transport links, and local shops.
- Mid-terrace Victorian home
- In need of modernisation
- Three bedrooms
- Two reception rooms
- Kitchen with additional storage room
- Potential to extend (STPP)
- Close to a range of fantastic schooling
- 0.6 Miles from Upton Park Station (District and Hammersmith & City lines)
- Chain free
*SOLD BY PETTY SON & PRESTWICH* Situated just 0.6 miles from Upton Park Station (District and Hammersmith & City lines), the property is well-connected for travel into the City and beyond. There are also several bus routes and a variety of shops and amenities nearby on the local high street.
Families will appreciate the choice of schools in the area — Central Park Primary (Ofsted ‘Good’, 0.2 miles) and two ‘Outstanding’-rated primaries, St Edwards (0.4 miles) and Cleves (0.5 miles), all within easy walking distance. Central Park and Plashet Park are both just 0.4 miles away, offering green space for outdoor time.
The house itself is in need of updating throughout but has plenty of potential. Downstairs, two original reception rooms have been opened up to create a through lounge, with windows front and back letting in natural light.
The kitchen sits at the rear, with a small rear addition that could work well as a utility or be opened up to make a larger kitchen space (subject to the usual permissions). Upstairs are three bedrooms and a family bathroom.
The rear garden includes a side return with storage cupboard and space for extension (STPP) or can be landscaped to suit. The property is offered for sale with no onward chain, ideal for those wishing to move quickly.
EPC Rating: C70
Council Tax Band: C
An Anti-Money Laundering fee will be applicable to all purchasers at a cost of £18.00 per person.
-
Share this Property
View
Council Tax Band
Band C
Parking
Ask Agent
Garden
Ask Agent
Accessibility
Ask Agent
Tenure
Freehold
Electric
Ask Agent
Water
Ask Agent
Heating
Ask Agent
Broadband
Ask Agent
Sewerage
Ask Agent
Private rights of way
Ask Agent
Public rights of way
Ask Agent
Listed property
Ask Agent
Restrictions
Ask Agent
Flooded in last 5 years
Ask Agent
Flood defenses
Ask Agent
Source of flood
Ask Agent

