< Back to search results
Elmcroft Close, Wanstead
Petty Son & Prestwich are pleased to market this three-bedroom semi-detached family home with attached garage, off-street parking, and excellent scope to extend (STPP), perfectly positioned at the entrance of a quiet cul-de-sac on the sought-after Nightingale Estate.
- 0.5 Miles to Wanstead High Street
- 0.3 Miles to Nightingale Primary School
- Westerly facing rear garden
- Garage and driveway
- Extended kitchen
- Generous through lounge
- Opportunity to extend (STPP)
- Quiet cul-de-sac location
- In need of updating
- Three-bedroom semi-detached home
*SOLD BY PETTY SON & PRESTWICH* Set within a select close of just eight homes, this property enjoys a peaceful, tucked-away position, while still being within easy reach of Wanstead High Street (0.5 miles) and Snaresbrook Underground Station (0.7 miles). The highly rated Nightingale Primary School is a mere 0.3 miles walk, ideal for commuters and families alike.
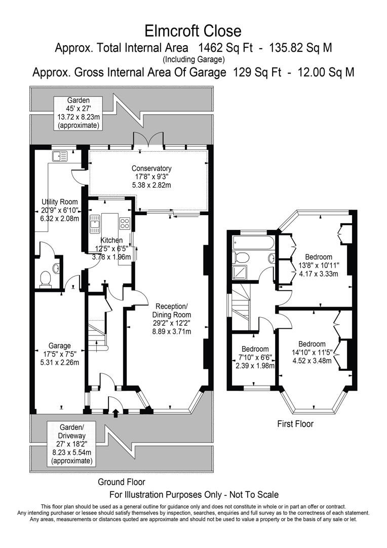
The property itself offers a fantastic blank canvas, requiring modernisation throughout but bursting with potential. The ground floor features a spacious through lounge, an extended kitchen, conservatory, and a convenient downstairs W.C.
Upstairs, you’ll find three bedrooms (two generous doubles) and a family bathroom.
Outside, the westerly-facing garden is laid to lawn and enjoys glorious afternoon and evening sun, perfect for entertaining or relaxing with the family.
With possibilities to extend at the rear, into the loft, and over the garage (subject to the usual permissions), this is a chance to create a home truly tailored to your needs.
EPC Rating: D63
Council Tax Band: E
An Anti-Money Laundering fee will be applicable to all purchasers at a cost of £18.00 per person.
-
Share this Property
View
Council Tax Band
Band E
Parking
Ask Agent
Garden
Ask Agent
Accessibility
Ask Agent
Tenure
Freehold
Electric
Ask Agent
Water
Ask Agent
Heating
Ask Agent
Broadband
Ask Agent
Sewerage
Ask Agent
Private rights of way
Ask Agent
Public rights of way
Ask Agent
Listed property
Ask Agent
Restrictions
Ask Agent
Flooded in last 5 years
Ask Agent
Flood defenses
Ask Agent
Source of flood
Ask Agent

