< Back to search results
Harpenden Road, Aldersbrook
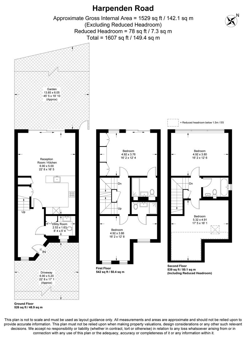
Petty Son & Prestwich are pleased to offer this newly constructed and spacious four bedroom three bathroom family home situated on the ever popular Aldersbrook Estate.
- 4 bedrooms
- 3 bathrooms
- Newly constructed
- Fully fitted kitchen
- Juliette balcony
- Underfloor heating throughout
- Landscaped garden
Positioned in the picturesque Aldersbrook conservation area this home is within close proximity of Aldersbrook Primary School (Ofsted rated outstanding) and is just a stroll away from Wanstead Park offering picturesque walks through forest land and past ornamental lakes of the late Wanstead House. In the opposite direction there are fantastic bus routes available from Aldersbrook Road, whilst the sprawling Wanstead Flats offer yet further open space to enjoy all year round.
Once inside the house a spacious entrance hall gives way to a generously sized utility room with a large cupboard that houses a washing machine and condenser dryer, sink and handy W.C. An impressive open plan kitchen/living/dining room to the rear offers a fantastic living and entertaining space with a handy storage cupboard and large bi-fold doors overlooking the landscaped low maintenance rear garden. The attractive shaker style kitchen boasts composite worktops, breakfast bar and a range of integrated Neff appliances including fridge/freezer, dishwasher induction hob, oven, microwave and grill. The home is heated throughout by underfloor heating, fuelled by a ground source heat pump with backup emersion ensuring the home is not only efficient but cost affective. Light solid oak flooring runs throughout the entire property.
Ascending the solid oak staircase to the first floor there are two double bedrooms on offer both of which benefit from an en-suite shower and sash windows and fitted wardrobes with the larger room further benefiting from wall-to-wall fitted wardrobes and a Juliette balcony. The second floor offers two further bedrooms and a contemporary bathroom both with impressive vaulted ceilings and one with a Juliette balcony, offering views over the incredibly leafy area of Aldersbrook.
Externally there is a driveway with an electric car charging port to the front and landscaped garden laid to patio and Astro-Turfed lawn area, edged by raised beds, an external water tap and storage shed to the rear. The property further benefits from side access to the right of the property.
Available 11th April 2026
Unfurnished
1 Week Holding Deposit - £807.69
5 Week Total Deposit - £4038.46
Council Tax Band - F
EPC Rating - B85
NEW ASSURED SHORTHOLD TENANCIES (ASTs) SIGNED ON OR AFTER 1 JUNE 2019*
Holding Deposit (per tenancy) - One week's rent. This is to reserve a property. Please Note: This will be withheld if any relevant person (including any guarantor(s)) withdraw from the tenancy, fail a Right-to-Rent check, provide materially significant false or misleading information, or fail to sign their tenancy agreement (and / or Deed of Guarantee) within 15 calendar days (or other Deadline for Agreement as mutually agreed in writing).
Security Deposit (per tenancy and where Rent is under £50,000 per year) - Five weeks' rent. This covers damages or defaults on the part of the tenant during the tenancy.
Security Deposit (per tenancy and where Rent of £50,000 or over per year) - Six weeks' rent. This covers damages or defaults on the part of the tenant during the tenancy.
Unpaid Rent - Interest at 3% above the Bank of England Base Rate from Rent Due Date until paid in order to pursue non-payment of rent. Please Note: This will not be levied until the rent is more than 14 days in arrears.
Lost Key(s) or other Security Device(s) - Tenants are liable to the actual cost of replacing any lost key(s) or other security device(s). If the loss results in locks needing to be changed, the actual costs of a locksmith, new lock and replacement keys for the tenant, landlord any other persons requiring keys will be charged to the tenant. If extra costs are incurred there will be a charge of £15 per hour (inc. VAT) for the time taken replacing lost key(s) or other security device(s).
Variation of Contact (Tenants Request) - £50 (inc. VAT) per agreed variation. To cover the costs associated with taking landlord's instructions as well as the preparation and execution of new legal documents.
Change of Sharer (Tenant's Request) - £50 (inc. VAT) per replacement tenant or any reasonable costs incurred if higher. To cover the costs associated with taking landlord's instructions, new tenant referencing and Right-to-Rent checks, deposit registration as well as the preparation and execution of new legal documents.
Early Termination (Tenant's Request) - Should the tenant wish to leave their contract early, they shall be liable to the landlord's costs in re-letting the property as well as all rent due under the tenancy until the start date of the replacement tenancy. These costs will be no more than the maximum amount of rent outstanding on the tenancy.
Please ask a member of staff if you have any questions about our fees.
-
Share this Property
View
Let available date
10/04/2026
Deposit
Ask Agent
Min. Tenancy
Ask Agent
Let type
Long Term
Furnish type
Un-Furnished
Council Tax Band
Band F
Parking
Ask Agent
Garden
Ask Agent
Accessibility
Ask Agent
Electric
Ask Agent
Water
Ask Agent
Heating
Ask Agent
Broadband
Ask Agent
Sewerage
Ask Agent
Private rights of way
Ask Agent
Public rights of way
Ask Agent
Listed property
Ask Agent
Restrictions
Ask Agent
Flooded in last 5 years
Ask Agent
Flood defenses
Ask Agent
Source of flood
Ask Agent

