< Back to search results

Hazelwood, Loughton
6 bedroom, 3 bathroom house for sale in Loughton

Asking price £945,000For Sale

6 bedroom

Situated in the highly sought-after Hazelwood area of Loughton, Petty Son & Prestwich are delighted to present this exceptionally spacious and beautifully maintained six-bedroom, three-bathroom family home.

  • Six bedroom house
  • Two bathrooms and one ensuite bathroom
  • Kitchen/diner
  • Downstairs W.C
  • Chain Free
  • 0.6 miles to Loughton Central Line Underground Station
  • Parking for several cars

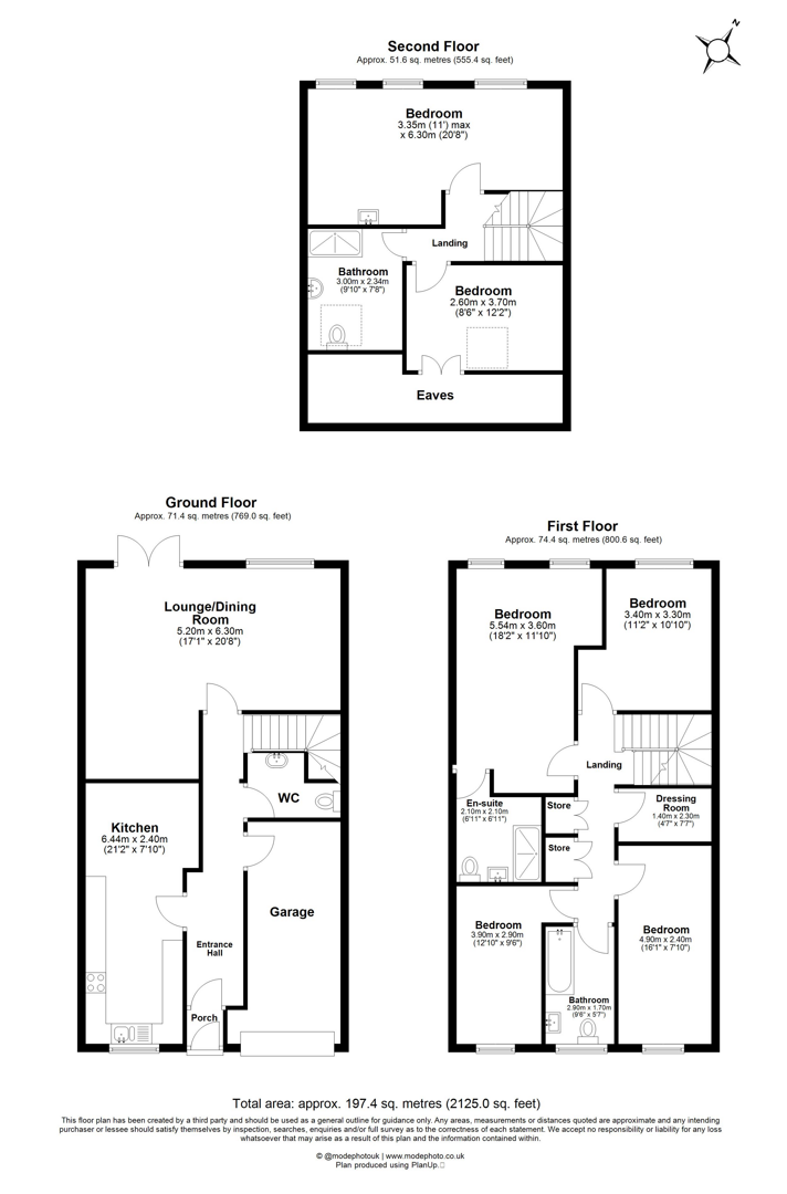
Offering over 2,100 sq. ft. of immaculate accommodation arranged across three floors, this impressive property combines generous living space with a superb location. Perfectly positioned, the home is just 0.4 miles from Loughton’s vibrant High Road, offering an excellent selection of shops, restaurants and bars, and only 0.6 miles from Loughton Central Line Underground Station.

The property sits in a peaceful setting in the road and also benefits from very close proximity to Epping Forest, ideal for weekend walking. Upon arrival, the property’s mock-Georgian façade creates an immediate sense of elegance and kerb appeal.

Internally, the home is presented in pristine condition throughout, featuring fresh, neutral décor and a bright, welcoming atmosphere. The ground floor offers a spacious and stylish kitchen/diner to the front, fitted with classic white shaker-style units, complemented by dark grey work surfaces and matching flooring. The dining area, complete with fitted units, provides an excellent space for entertaining and family gatherings.

To the rear, a generous lounge spans the full width of the property, flooded with natural light via large windows and patio doors opening onto the garden. Additional ground floor benefits include a convenient W.C. and access to the integral garage, ideal for storage.

The first floor comprises four well-proportioned bedrooms, a dressing room, and two useful storage cupboards. The principal bedroom benefits from a contemporary en-suite shower room, while a modern family bathroom serves the remaining rooms. The second floor has been thoughtfully designed to maximise space, offering two further bedrooms and an additional shower room, enhanced by a skylight that fills the space with natural light. Eaves storage provides further practicality.

Externally, the rear garden has been beautifully landscaped to create a tiered outdoor retreat. A combination of patio and lawn areas provides the perfect setting for relaxation and entertaining, while the upper lawn is framed by mature planting, shrubs and trees, offering privacy and charm.

This outstanding home truly offers everything a growing family could need and is offered to the market chain free, making it an ideal opportunity for buyers seeking a smooth and swift move.

EPC Rating: D66
Council Tax Band: F
An Anti-Money Laundering fee will be applicable to all purchasers at a cost of £18.00 per person.

  • Share this Property

View

Council Tax Band
Band F
Parking
Ask Agent
Garden
Ask Agent
Accessibility
Ask Agent
Tenure
Freehold
Electric
Ask Agent
Water
Ask Agent
Heating
Ask Agent
Broadband
Ask Agent
Sewerage
Ask Agent
Private rights of way
Ask Agent
Public rights of way
Ask Agent
Listed property
Ask Agent
Restrictions
Ask Agent
Flooded in last 5 years
Ask Agent
Flood defenses
Ask Agent
Source of flood
Ask Agent

Location

 

Stamp Duty Calculator

Interested in this property?

Viewing

or call us on 0208 989 2091

  • Contact our local experts to find out how much is your property worth

  • Read the latest edition of our community magazine "The Green"

  • Learn about the work we do with in the community

Top