< Back to search results
Belgrave Road, Wanstead
Petty Son & Prestwich are delighted to present this beautifully extended, three-bedroom Edwardian home, that has approved planning permission to convert the loft into an additional bedroom with an ensuite shower room! Perfectly located on the ever-popular Lakehouse Estate, which is a designated conservation area renowned for its period homes, stunning tree-lined streets and close proximity to Wanstead Flats and surrounding woodland.
- The bedroom Edwardian house
- Sought after location
- Brand new rear extension
- Downstairs cloakroom
- Exposed floor boards
- Plantation shutters
- Cellar
- Off road parking
- Leytonstone Station 0.9 miles
- Planning Permission Granted For Loft Extension
This thoughtfully renovated home offers the perfect blend of charming original features and stylish modern living, all within easy reach of excellent transport links and highly regarded schools. Leytonstone Central Line Station is just 0.9 miles away on foot, while Wanstead Station is 1.1 miles. Aldersbrook Primary School, rated Outstanding by Ofsted, is conveniently located just 0.8 miles away.
Upon entry, you’re welcomed by a generous hallway with a beautifully preserved carved balustrade. The high ceilings, large sash windows, dado rails, and stained glass details speak to the home’s Edwardian heritage, while modern upgrades offer everyday comfort and luxury.
The front reception room is bright and spacious, featuring a stunning shuttered bay window, fireplace, and brand new flooring that flows seamlessly through to the rear of the home.
The real showstopper is the impressive, brand new rear extension; a light-filled open-plan kitchen, dining, and family area with bifolding doors opening onto a raised decked terrace.
The kitchen features sleek dark grey cabinetry, elegant white worktops, and a central kitchen island with a breakfast bar overhang, perfect for casual dining and entertaining. A large rear window and striking apex skylight flood the space with natural light, creating an ultra-modern family hub.
A newly added and extremely practical contemporary downstairs cloakroom, which is conveniently located off the kitchen.
Upstairs, you’ll find three well-proportioned bedrooms: two doubles and a generous single. The principal bedroom benefits from built-in wardrobes, while the third bedroom features a charming original fireplace. Exposed floorboards and freshly painted white walls throughout the first floor add rustic warmth and a blank canvas for personal touches. The modern family bathroom is spacious and stylish, with a standalone bath, separate shower enclosure, grey floor tiles, and crisp white wall tiling with a grey tiled shower feature wall for added elegance.
Externally, the property benefits from a private driveway providing off-street parking and a large low-maintenance rear garden with raised decking, a large lawn area and a shed.
Council Tax Band - E
EPC Rating - C70
An Anti-Money Laundering fee will be applicable to all purchasers at a cost of £18.00 per person.
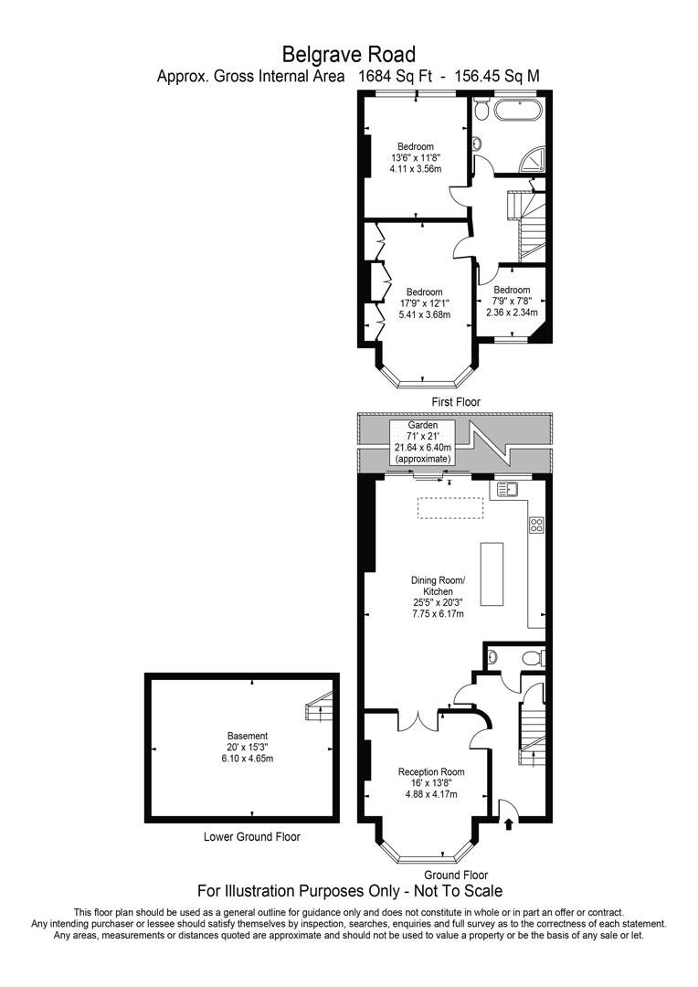
Reception Room 16' x 13'8" (4.85m x 4.19m (15'11 x 13'9))
Dining Room/ Kitchen 25'5" x 20'3" (4.70m x 3.61m (15'5 x 11'10))
Bedroom 17'9" x 12'1" (5.44m x 3.61m (17'10 x 11'10 ))
Bedroom 13'6" x 11'8" (4.14m x 3.63m (13'7 x 11'11))
Bedroom 7'9" x 7'8" (9'10 x 7'8 (29'6"'32'9" x 22'11"'26'2"))
-
Share this Property
View
Council Tax Band
Band E
Parking
Ask Agent
Garden
Ask Agent
Accessibility
Ask Agent
Tenure
Freehold
Electric
Ask Agent
Water
Ask Agent
Heating
Ask Agent
Broadband
Ask Agent
Sewerage
Ask Agent
Private rights of way
Ask Agent
Public rights of way
Ask Agent
Listed property
Ask Agent
Restrictions
Ask Agent
Flooded in last 5 years
Ask Agent
Flood defenses
Ask Agent
Source of flood
Ask Agent

