< Back to search results
Trent Court, Wanstead
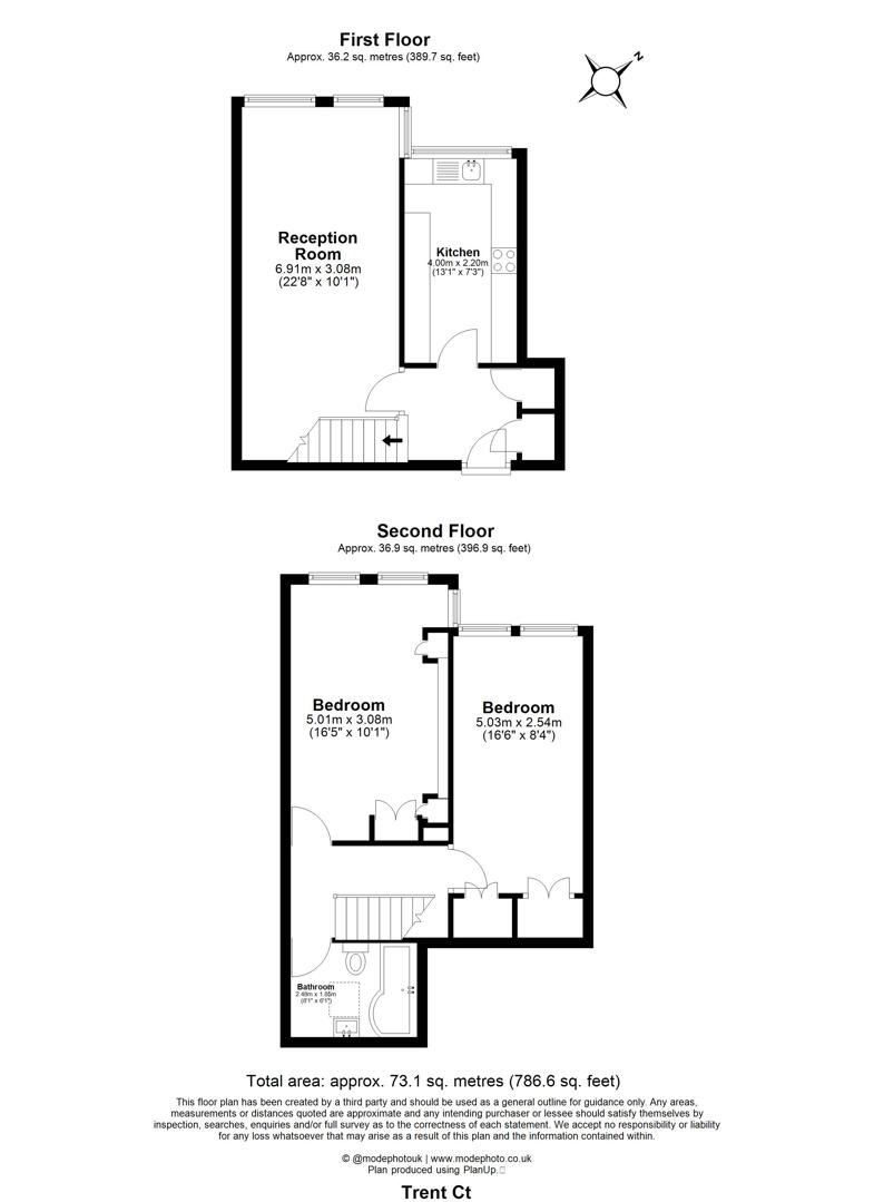
Petty Son & Prestwich are proud to present this impeccably styled and thoughtfully redesigned split-level two double bedroom apartment, offering the perfect balance of contemporary elegance and practical living.
- Two double bedrooms
- Split level apartment
- Stunning condition throughout
- Electric thermo-skirting
- Garage
- 0.2 miles to Wanstead High Street
- 0.4 miles to Snaresbrook Station
Arranged over the second and third floors of a well-maintained purpose-built development, this home delivers the sense of space and flow you would expect from a house, combined with the convenience of apartment living.
From the moment you enter, the attention to detail is clear. The spacious open plan reception room has been cleverly zoned to create a defined dining space within the square bay window alongside a generous lounge area designed for relaxation. Stylish feature lighting enhances both spaces, adding warmth and a modern design edge. A particularly striking addition is the bespoke under-stairs bar, a creative feature complete with smart built-in storage, making it ideal for entertaining. In a further nod to intelligent design, the owners have replaced traditional electric storage heaters with electric thermo-skirting, ensuring clean lines throughout and freeing every wall to maximise layout flexibility. Each room is also individually zoned with a smart home thermostat.
The kitchen continues the home’s modern aesthetic, combining crisp white cabinetry with warm wood-effect work surfaces to create a look that is both contemporary and inviting. Ample cupboard space is complemented by thoughtfully added open shelving and pantry-style storage, bringing character as well as practicality.
Upstairs, two generous double bedrooms provide fitted wardrobes and excellent storage, maintaining the home’s streamlined feel. The fully tiled bathroom is finished in elegant deep cream tones and features a modern white suite, over-bath shower, and a distinctive tapless bath, creating a calm, spa-inspired environment.
Externally, the property benefits from a garage en bloc, residents’ permit parking, an entry phone system, and well-maintained communal gardens. Ideally positioned just moments from Wanstead High Street, with its popular cafés, restaurants and boutiques, the apartment is also within close proximity to Snaresbrook Station and Wanstead Station on the Central Line, offering a swift commute into Central London in under 25 minutes.
Lease Information: 999 years from 19th September 1972 (945 years currently remain)
Service Charge: £2087.22 per annum (reviewed annually)
Ground Rent: £44
EPC Rating: C75
Council Tax Band: C
An Anti-Money Laundering fee will be applicable to all purchasers at a cost of £18.00 per person.
-
Share this Property
View
Council Tax Band
Band C
Parking
Ask Agent
Garden
Ask Agent
Accessibility
Ask Agent
Tenure
Leasehold
Electric
Ask Agent
Water
Ask Agent
Heating
Ask Agent
Broadband
Ask Agent
Sewerage
Ask Agent
Ground rent
£44
Annual service charge
£2087
Length of lease
945 years left
Private rights of way
Ask Agent
Public rights of way
Ask Agent
Listed property
Ask Agent
Restrictions
Ask Agent
Flooded in last 5 years
Ask Agent
Flood defenses
Ask Agent
Source of flood
Ask Agent

