< Back to search results
Woodlands Avenue, Aldersbrook
*SOLD BY PETTY SON & PRESTWICH* Petty Son & Prestwich are pleased to bring to market this 1920s semi-detached home, complete with off-street parking and a garage, and offering plenty of scope for buyers looking to take on a project.
- Three-bedroom semi-detached house
- In need of full modernisation
- Scope to extend both into the loft and to the rear (STPP)
- Off-street parking plus shared drive to garage
- Two reception rooms
- Ground-floor W.C. and useful cellar
- Generous south-facing garden
- Offered chain-free
- Approximately 0.4 miles from Aldersbrook Primary School
- Moments from open green space and woodland
*SOLD BY PETTY SON & PRESTWICH* Positioned just a short walk from the Ofsted-rated Outstanding Aldersbrook Primary School (approx. 0.4 miles), the property is also well served by transport links. Manor Park Station and the Elizabeth Line sit around 1.4 miles away, with both Wanstead and Leytonstone Central Line stations roughly a mile from the front door. Bus routes can be found nearby on Blake Hall Road, and Wanstead Park, with its woodland, lakes and open green spaces (and it’s only a few minutes’ stroll!) The house requires full modernisation but, in line with neighbouring properties, offers potential for a loft conversion and a larger rear extension (STPP).
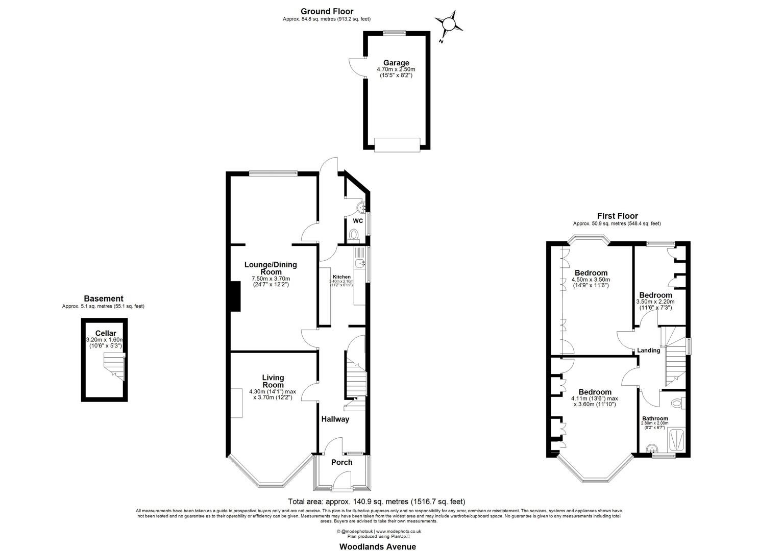
The current ground-floor layout includes an entrance porch, hallway, bay-fronted reception room, extended rear reception, utility area with W.C., and a galley kitchen, along with access to a useful cellar.
Upstairs you’ll find two generous double bedrooms, a single bedroom and a family bathroom.
Externally, the property benefits from a driveway, which is a real plus within the conservation area, along with a garage accessed via a shared drive.
The south-facing rear garden is a notable size, with established planting and side access, offering buyers the chance to create a landscaped haven or a great outdoor entertaining space.
The property is offered with no onward chain.
EPC Rating: D62
Council Tax Band: E
An Anti-Money Laundering fee will be applicable to all purchasers at a cost of £18.00 per person.
-
Share this Property
View
Council Tax Band
Band E
Parking
Ask Agent
Garden
Ask Agent
Accessibility
Ask Agent
Tenure
Freehold
Electric
Ask Agent
Water
Ask Agent
Heating
Ask Agent
Broadband
Ask Agent
Sewerage
Ask Agent
Private rights of way
Ask Agent
Public rights of way
Ask Agent
Listed property
Ask Agent
Restrictions
Ask Agent
Flooded in last 5 years
Ask Agent
Flood defenses
Ask Agent
Source of flood
Ask Agent

