< Back to search results
Warren Road, Wanstead
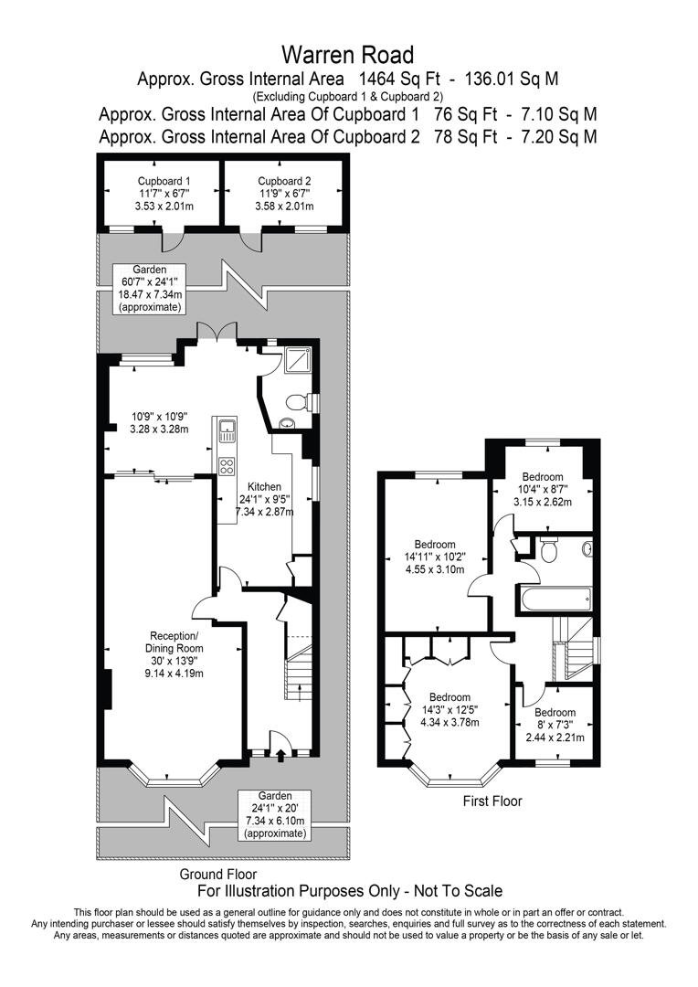
*SOLD BY PETTY SON & PRESTWICH* Petty Son & Prestwich are delighted to present this charming and characterful four-bedroom family home, ideally located in the highly sought-after Warren Estate in Wanstead with West facing garden.
- Four bedroom semi detached house
- Reception room of thirty foot in depth
- Extended to the rear
- Downstairs shower room
- Potential to extend into the loft (STPP)
- Modernisation required
- 0.5 miles from Wanstead Underground Station
- Chain free
- West facing rear garden
- Off road parking
*SOLD BY PETTY SON & PRESTWICH* Nestled between the picturesque Wanstead Park and the neighbouring Wanstead Golf Club, this impressive property offers the perfect blend of tranquil green surroundings and excellent connectivity. Ideal for commuters and families alike, the home is just 0.5 miles from Wanstead’s Central Line Station, with easy access to the M11, M25, North Circular, and a range of local bus routes. Families will appreciate the abundance of highly regarded schools and nurseries nearby, while Wanstead High Street, with its vibrant mix of independent shops, cafes, bars, and restaurants is just a short walk away (0.5 mile).
The home itself boasts an attractive double bay frontage with driveway parking, and while it would benefit from cosmetic modernisation, it retains a wealth of charming original features. These include beautiful stained-glass windows and an ornate banister with original spindles, adding character and potential for sympathetic updating.
The spacious entrance hall leads into a large through lounge, perfect for family living and entertaining. Solid wood doors open into a rear extension, currently providing a bright dining area and a convenient downstairs shower room.
There is also a separate fitted kitchen. Subject to planning permission, the ground floor could be reconfigured to create a stunning open-plan kitchen/diner with a utility area.
Upstairs, the first floor offers four bedrooms, in which three of the bedrooms are doubles, including a principal bedroom with fitted wardrobes, and a fourth single room. A family bathroom completes this level, with fantastic potential to extend into the loft (STPP), creating a spacious principal suite if desired.
Outside, the West facing rear garden begins with a paved patio, perfect for al-fresco dining during the warmer months and leads to a well-maintained lawn. To the rear, large outbuilding offers excellent storage or workshop potential. This is a wonderful opportunity to acquire a substantial family home in a prestigious and peaceful location, with enormous scope to improve and extend and is being offered for sale chain free!
EPC Rating: D65
Council Tax Band: F
An Anti-Money Laundering fee will be applicable to all purchasers at a cost of £10.00 per person.
-
Share this Property
View
Council Tax Band
Band F
Parking
Ask Agent
Garden
Ask Agent
Accessibility
Ask Agent
Tenure
Freehold
Electric
Ask Agent
Water
Ask Agent
Heating
Ask Agent
Broadband
Ask Agent
Sewerage
Ask Agent
Private rights of way
Ask Agent
Public rights of way
Ask Agent
Listed property
Ask Agent
Restrictions
Ask Agent
Flooded in last 5 years
Ask Agent
Flood defenses
Ask Agent
Source of flood
Ask Agent

