< Back to search results
The Uplands, Loughton
Situated on The Uplands, one of Loughton’s sought-after roads, this charming home enjoys an enviable position at the top of the High Road, surrounded by a collection of attractive and characterful properties.
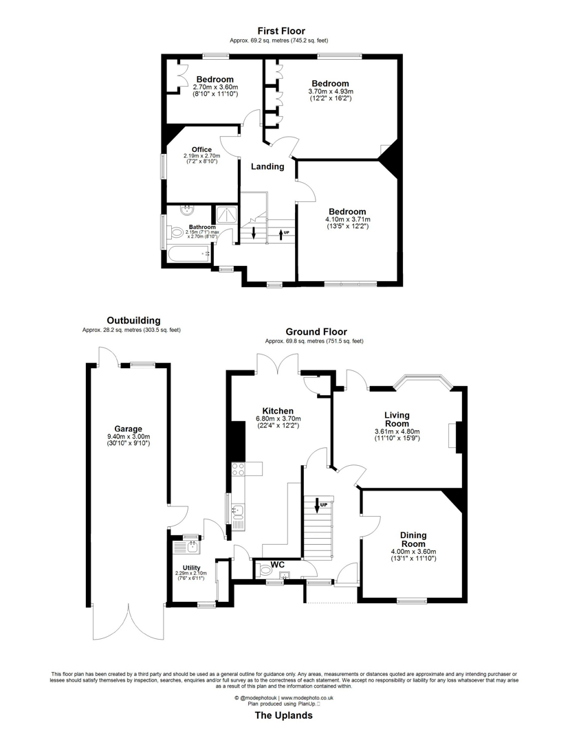
- Four bedroom house
- Wide plot
- Double garage
- Seperate utility room
- Downstairs WC
- Large rear garden
- 0.9 miles to Loughton Underground Station
- 0.3 miles to Loughton High Road
Despite its tranquille and leafy setting, the property is just 0.4 miles from Loughton High Street, offering an excellent selection of shops, cafés and restaurants, while Loughton Underground Station is only 0.9 miles away. Families are also well catered for, with Staples Road Primary School just 0.4 miles from the property. Boasting an enchanting ‘chocolate box’ frontage, this truly unique home exudes charm and warmth from the outset. Set on a wide plot, the property makes an immediate impression, enhanced by a double garage. Distinctive features such as leaded lights windows, mock Tudor panelling and a quaint porch combine beautifully, while the picket fence and delightful front garden further enhance its welcoming kerb appeal.
Internally, the property continues to impress with its generous proportions and practical layout, ideal for family living. There are two spacious reception rooms, with the rear reception benefiting from a striking bay window overlooking the garden. The large kitchen/diner provides an excellent entertaining space, with patio doors seamlessly connecting the indoors to the outside. In addition, a separate utility room offers valuable extra storage and direct garden access, which is perfect for pet owners or keen gardeners, while keeping the main kitchen free for cooking and hosting. A convenient ground floor WC completes this level. A characterful tiered staircase, complemented by a feature window, leads to the first floor, where there are four well-proportioned bedrooms, two of which benefit from fitted wardrobes. The family bathroom is generously sized, featuring both a bath and a separate shower cubicle.
The home retains a wealth of original features, including charming wooden cabinetry and fireplaces, adding to its unique appeal. The rear garden is particularly impressive, notable for its exceptional width and sense of space, thanks to the positioning of the double garage. Beautifully maintained, it offers a superb combination of patio, manicured lawn and mature planting. The double garage provides excellent storage and also presents exciting potential for conversion, subject to the necessary planning permissions.
EPC RATING: E52
Council Tax Band: G
An Anti-Money Laundering fee will be applicable to all purchasers at a cost of £18.00 per person.
-
Share this Property
View
Council Tax Band
Band G
Parking
Ask Agent
Garden
Ask Agent
Accessibility
Ask Agent
Tenure
Freehold
Electric
Ask Agent
Water
Ask Agent
Heating
Ask Agent
Broadband
Ask Agent
Sewerage
Ask Agent
Private rights of way
Ask Agent
Public rights of way
Ask Agent
Listed property
Ask Agent
Restrictions
Ask Agent
Flooded in last 5 years
Ask Agent
Flood defenses
Ask Agent
Source of flood
Ask Agent

