< Back to search results
Sherrard Road, Manor Park
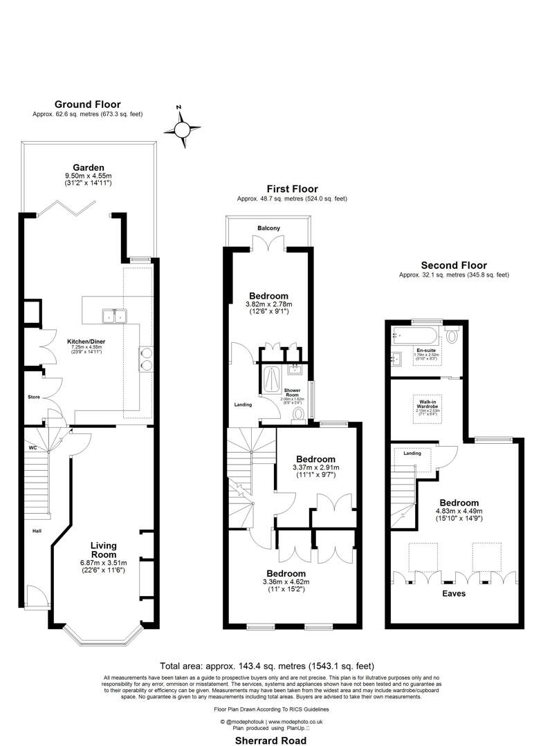
Petty Son & Prestwich are delighted to present this exceptional four-bedroom Victorian home, beautifully extended to combine period elegance with contemporary luxury.
- Four double bedroom house
- Ensuite bathroom and dressing room
- Stunning condition throughout
- Double storey extension
- Double Domer loft conversion
- Downstairs toilet
- Private balcony from first floor bedroom
- 0.4 miles to Woodgrange and Manor Park Stations
- 1.4 miles to Wanstead Park Station
Set on a peaceful turning just off High Street North, the property offers excellent connectivity via Woodgrange Park, Manor Park (Elizabeth Line) and Wanstead Park stations, with Plashet Park and Wanstead Flats close by for the perfect balance of city and green space. The restored Victorian brick façade and elegant bay window create an immediate impression.
Inside, a welcoming hallway leads to a stunning through lounge and dining room with high ceilings, solid wood flooring and a refined colour palette. A feature fireplace with ornate white mantel and peacock tiling forms a striking focal point, complemented by bespoke shelving. An internal opening connects seamlessly to the kitchen while maintaining distinct living spaces.
To the rear, the extended kitchen and dining area is flooded with natural light from a dramatic glazed roof and floor-to-ceiling glazing with bifold doors. Soft grey cabinetry, solid wood worktops, rose-gold hardware and a butler sink add style, while a generous breakfast bar enhances everyday living.
Upstairs are three well-proportioned double bedrooms, two with fitted wardrobes, and a sleek shower room finished with black mosaic tiling.
The rear bedroom enjoys a private balcony overlooking the garden. The loft conversion creates an impressive principal suite with multiple skylights, extensive storage, a dressing area and a luxurious bathroom featuring emerald tiling and gold fittings.
The landscaped rear garden completes the home, offering a private retreat with lawn, decking and mature borders.
EPC Rating: D67
Council Tax Band: C
An Anti-Money Laundering fee will be applicable to all purchasers at a cost of £18.00 per person.
-
Share this Property
View
Council Tax Band
Band C
Parking
Ask Agent
Garden
Ask Agent
Accessibility
Ask Agent
Tenure
Freehold
Electric
Ask Agent
Water
Ask Agent
Heating
Ask Agent
Broadband
Ask Agent
Sewerage
Ask Agent
Private rights of way
Ask Agent
Public rights of way
Ask Agent
Listed property
Ask Agent
Restrictions
Ask Agent
Flooded in last 5 years
Ask Agent
Flood defenses
Ask Agent
Source of flood
Ask Agent

