< Back to search results
Lonsdale Road, Wanstead
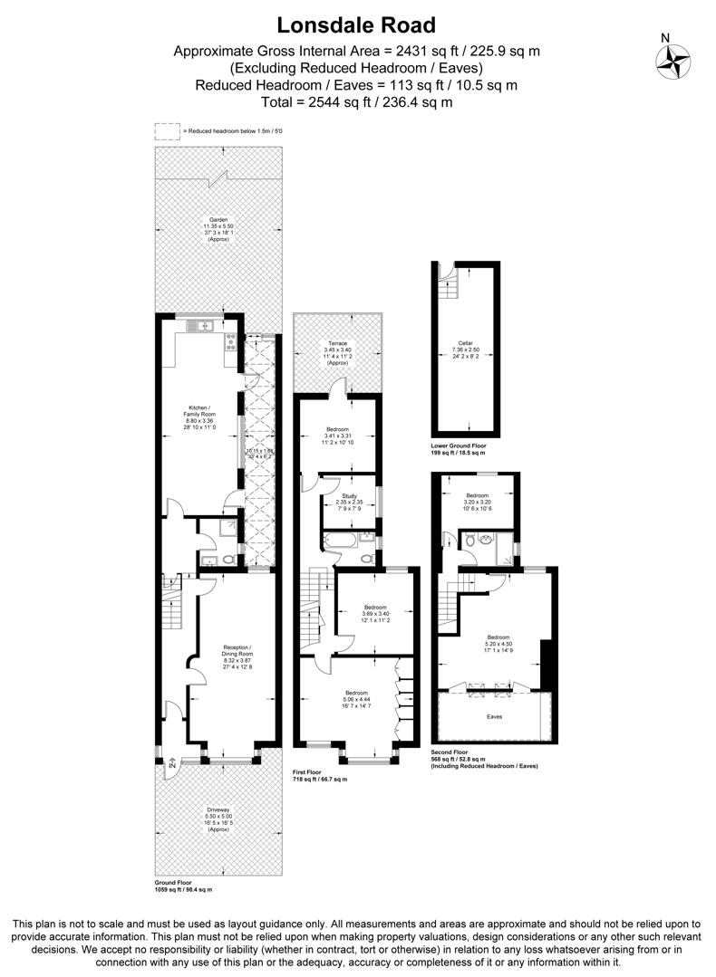
Petty Son & Prestwich are delighted to offer this spacious five bedroom/three bathroom family home featuring a recently added loft conversion resulting in accommodation of over 2400 sq ft including cellar. There is a dual aspect sitting/dining room plus kitchen/family room. No onward chain.
- Five Bedrooms
- Sitting/Dining Room
- Kitchen/Family Room
- Ground Floor Shower Room
- Family Bathroom
- Second Floor Shower Room
- Off Road Parking
- No Onward Chain
- Wanstead Station (0.6miles)
Positioned on Lonsdale Road, this property is just 0.4 miles from Wanstead High Street and Central Line Station. As well as an array of independent shops, bars and restaurants Wanstead is highly sought after thanks to it's two large central parks and fantastic range of nurseries, primary schools and High School – nearly all of which are rated good or outstanding by Ofsted. With a handsome exposed brick frontage with double square bays this Victorian home offers spacious living accommodation over three floors.
The accommodation commences with a welcoming entrance hallway which serves a spacious dual aspect sitting/dining room, a perfect space for the family to relax. To the rear of the house you will find the kitchen/family room offering base and wall units complemented by contrasting work surfaces. There is plenty of room for a table and chairs. There is also a useful shower room on this floor.
The first floor accommodation comprises of three bedrooms, the principle room with ample storage space thanks to the fitted wardrobes. There is also another room on this floor which lends itself well as an office space for those who need to work from home. A family bathroom completes the accommodation on this floor.
A recently completed loft extension provides two further bedrooms and a superb fully tiled shower room.
The rear garden is approximately 37' in length commencing with a patio area, the rest being lawn whilst the frontage provides an off road parking space. The house is offered with no onward chain.
EPC Rating: D57
Council Tax Band: E
An Anti-Money Laundering fee will be applicable to all purchasers at a cost of £18.00 per person.
RECEPTION/DINING ROOM 27'4" x 12'8" (8.33m x 3.86m)
KITCHEN/FAMILY ROOM 28'10" x 11'0" (8.79m x 3.35m)
BEDROOM 16'7" x 14'7" (5.05m x 4.44m)
BEDROOM 12'1" x 11'2" (3.68m x 3.4m)
BEDROOM 11'2" x 10'10" (3.4m x 3.3m)
STUDY 7'9" x 7'9" (2.36m x 2.36m)
BEDROOm 17'1" x 14'9" (5.21m x 4.5m)
BEDROOM 10'6" x 10'6" (3.2m x 3.2m)
CELLAR 24'2" x 8'2" (7.37m x 2.49m)
-
Share this Property
View
Council Tax Band
Band E
Parking
Ask Agent
Garden
Ask Agent
Accessibility
Ask Agent
Tenure
Freehold
Electric
Ask Agent
Water
Ask Agent
Heating
Ask Agent
Broadband
Ask Agent
Sewerage
Ask Agent
Private rights of way
Ask Agent
Public rights of way
Ask Agent
Listed property
Ask Agent
Restrictions
Ask Agent
Flooded in last 5 years
Ask Agent
Flood defenses
Ask Agent
Source of flood
Ask Agent
