< Back to search results
Halstead Road, Wanstead
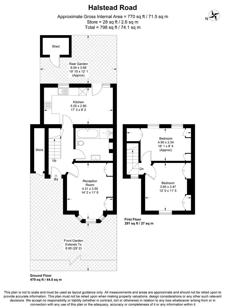
Located in the highly desirable Village area of Wanstead, Petty Son & Prestwich are thrilled to offer to market this brick fronted, semi-detached Victorian cottage.
- Attractive Victorian cottage
- Heart of Wanstead Village
- Two double bedrooms
- Large family bathroom
- Charming sitting room
- Extension housing kitchen/dining room
- Deep frontage with potential to create off road parking (STPP)
- Low maintenance rear garden with large storage shed
Positioned on the tree-lined Halstead Road, this characterful Victorian home is a short walk to Wanstead High Street (0.2 miles), both Snaresbrook and Wanstead Stations (0.3 miles and 0.5 miles respectively) as well as a range of fantastic nursery and primary schools. Boasting timeless kerb appeal with its exposed brick façade, elegant sash windows, and charming bay, the property is set back behind a generous front garden, enhancing its kerb appeal and creating an instantly welcoming approach.
Internally, the charm and character of this Victorian cottage is perhaps most evident in the elegant sitting room, where bespoke, period-style cabinetry has been thoughtfully recessed into the chimney breast alcoves, perfectly complementing the traditional fireplace and upgraded sash bay window. To the rear, a well-designed extension houses a bright kitchen/dining room, with direct access to a private, low-maintenance cottage garden, ideal for al fresco entertaining. Also on the ground floor, the stylish family bathroom is generously proportioned and features a contemporary suite with both a full-size bath and separate shower enclosure, while retaining the original chimney breast for added character.
Upstairs, the first floor plays host to two well-sized double bedrooms, each benefiting from built-in storage and sash windows. Access to the loft is via the principal bedroom, offering additional, handy storage space.
EPC Rating: D64
Council Tax Band: D
An Anti-Money Laundering fee will be applicable to all purchasers at a cost of £18.00 per person.
-
Share this Property
View
Council Tax Band
Band D
Parking
Ask Agent
Garden
Ask Agent
Accessibility
Ask Agent
Tenure
Freehold
Electric
Ask Agent
Water
Ask Agent
Heating
Ask Agent
Broadband
Ask Agent
Sewerage
Ask Agent
Private rights of way
Ask Agent
Public rights of way
Ask Agent
Listed property
Ask Agent
Restrictions
Ask Agent
Flooded in last 5 years
Ask Agent
Flood defenses
Ask Agent
Source of flood
Ask Agent

