< Back to search results
Greenstone Mews, Wanstead
*SOLD BY PETTY SON & PRESTWICH* Petty Son & Prestwich are pleased to offer for sale this well-presented two double bedroom mid-terrace home, positioned just moments from the ever-popular Christchurch Green in the heart of Wanstead.
- Freehold terraced house
- Two Double Bedrooms
- Moments from Wanstead High Street
- Private garden with rear access
- Positioned on a quiet no-through road
- Two parking spaces
- Seperate Kitchen
- Conservatory
- 0.5 miles to Wanstead Central line Station
- 0.4 Miles to Snaresbrook Central Line Station
Set within Greenstone Mews, a quiet, no-through road known for its friendly community feel, this home enjoys a prime Central Wanstead location - ideal for first-time buyers, downsizers or those looking to secure a strong position in this central setting. Both Wanstead (0.5 miles) and Snaresbrook Underground Station (0.4 miles) are within comfortable walking distance, making it an excellent choice for City and West End commuters.
Wanstead High Street, with its two leafy greens, independent boutiques, cafés and well-loved restaurants, is also close at hand, as are the areas highly regarded local schools.
Externally, the property benefits from two allocated parking spaces to the front which is a rare and valuable feature in this central setting. To the rear, a low-maintenance garden provides a private outdoor retreat, complete with rear access via a small alleyway running behind the terrace making it ideal for bicycles, bins or returning from a muddy walk across the Flats.
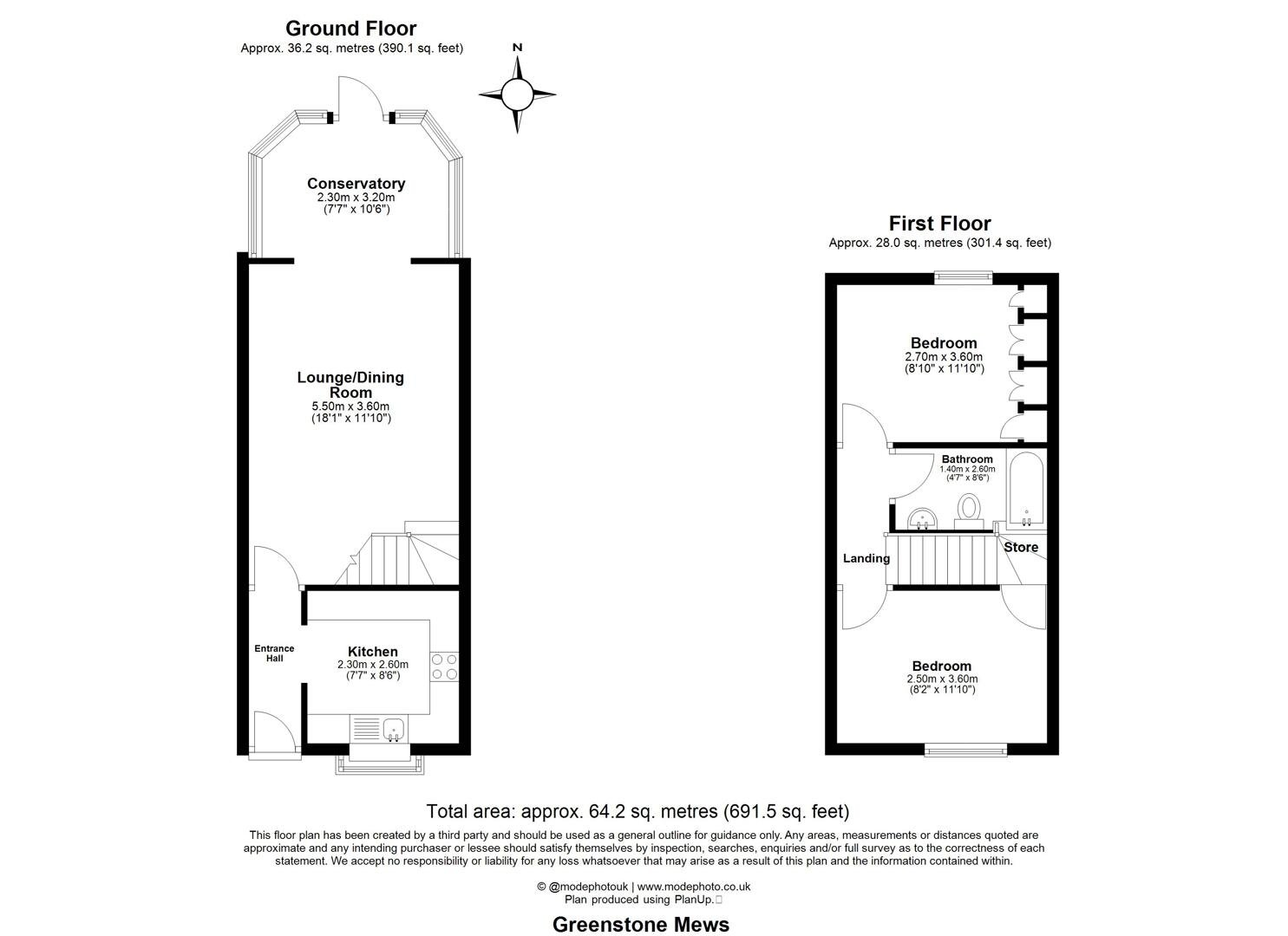
Internally, the ground floor is well arranged for modern living. A separate kitchen sits to the front of the property, while to the rear a spacious lounge flows seamlessly into a bright conservatory, which acts as a natural dining space and draws in excellent natural light throughout the day.
Upstairs, there are two well-proportioned double bedrooms. The principal bedroom features an entire wall of full-height fitted wardrobes, while the second bedroom benefits from a generous built-in storage cupboard over the stairs. Both are served by a family bathroom with shower over bath.
EPC Rating: C77
Council Tax Band: E
An Anti-Money Laundering fee will be applicable to all purchasers at a cost of £18.00 per person.
-
Share this Property
View
Council Tax Band
Band E
Parking
Ask Agent
Garden
Ask Agent
Accessibility
Ask Agent
Tenure
Freehold
Electric
Ask Agent
Water
Ask Agent
Heating
Ask Agent
Broadband
Ask Agent
Sewerage
Ask Agent
Private rights of way
Ask Agent
Public rights of way
Ask Agent
Listed property
Ask Agent
Restrictions
Ask Agent
Flooded in last 5 years
Ask Agent
Flood defenses
Ask Agent
Source of flood
Ask Agent

