< Back to search results
Empress Avenue, Aldersbrook
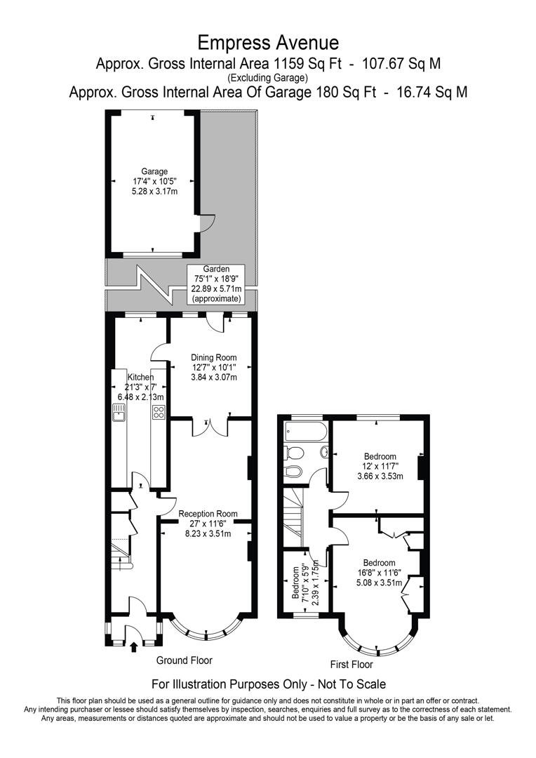
Petty Son & Prestwich are pleased to offer to market this extended, three bedroom end of terrace home, providing a generous living space in the heart of Aldersbrook.
- End of terrace house
- Three bedrooms
- Large through lounge of 27 foot in depth
- Further reception room
- Extended kitchen, 23’1 in depth
- Garden with large outbuilding
- Close to Alderbrook school
- 0.8 Miles from the Elizabeth Line
- Moments walk from the Wanstead Flats
Ideally situated on the sought-after Empress Avenue, this 1930’s residence enjoys a prime position within the heart of Aldersbrook, seamlessly connecting residents to the area’s most prized amenities and green spaces. Just 0.4 miles away lies the Ofsted-rated ‘Outstanding’ Aldersbrook Primary School, making this an exceptional location for families.
At only 230 feet from the property, the vast open expanse of Wanstead Flats provides picturesque walking and cycling routes stretching toward Forest Gate and Leytonstone, all set against the striking backdrop of the Canary Wharf skyline – a subtle reminder of the home’s enviable proximity to the City.
To the opposite side of Aldersbrook, the majestic Wanstead Park is just 0.5 miles away, offering tranquil ancient woodland, scenic lakes, and historic landmarks including The Temple and The Grotto – perfect for weekend exploration or daily escape. Transport connections are equally impressive, with a variety of bus routes available from the end of the road and Manor Park Station (Elizabeth Line) just 0.8 miles away, providing swift access into Central London and beyond.
This family home offers living space in abundance with a large through lounge spanning 27 foot in length, opening via double doors into a further reception room – ideal as a further reception or play area.
The kitchen has been extended to a depth of 23’1 and provides two large runs of units and worksurfaces, both amounting to a greater deal of storage and worktop space top prepare family meals. There is plenty of scope to create a larger kitchen/diner by combining the kitchen and rear reception.
The first floor provides three bedrooms, two of which are large doubles, and a family bathroom.
The rear garden is a good size, well maintained and very private, with a patio leading to central lawn edged by flowerbeds.
There is an existing garage which provides ample storage but could be converted into a fantastic home office or gym.
Council Tax Band: E
EPC Rating: E49
An Anti-Money Laundering fee will be applicable to all purchasers at a cost of £18.00 per person.
-
Share this Property
View
Council Tax Band
Band E
Parking
Ask Agent
Garden
Ask Agent
Accessibility
Ask Agent
Tenure
Freehold
Electric
Ask Agent
Water
Ask Agent
Heating
Ask Agent
Broadband
Ask Agent
Sewerage
Ask Agent
Private rights of way
Ask Agent
Public rights of way
Ask Agent
Listed property
Ask Agent
Restrictions
Ask Agent
Flooded in last 5 years
Ask Agent
Flood defenses
Ask Agent
Source of flood
Ask Agent

