< Back to search results
Cheneys Road, Leytonstone
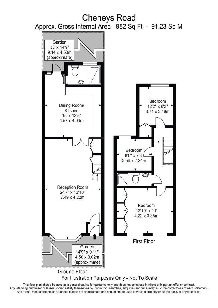
*SOLD BY PETTY SON & PRESTWICH* Petty Son & Prestwich are delighted to offer to market this three bedroom, two shower room period home with West facing garden and no onward chain.
- Three bedroom period home
- First and ground floor shower rooms
- Large through lounge
- Extended to the rear
- Kitchen/diner
- Potential to further improve and extend (STPC)
- West facing rear garden
- Within a mile of a number of different train lines
- Chain free
*SOLD BY PETTY SON & PRESTWICH* This period home is located between several stations; London Overground services can be found at Leytonstone High Road (0.7 miles), while Leytonstone Underground Station (Central Line) is just 1.1 miles away, providing swift access to the City and West End. The Elizabeth Line is also within easy reach, with both Maryland and Forest Gate stations approximately one mile from the property, allowing you to access a wide range of routes across London.
For leisure and lifestyle, Westfield Stratford City is a short cycle away, offering a wealth of shops, restaurants and entertainment options. The Queen Elizabeth Olympic Park provides fantastic sporting facilities and beautifully landscaped open spaces, while nearby Wanstead Flats Conservation Area offers acres of open heathland, woodland and lakes - a perfect green retreat within the city.
Retaining the proportions of its original Victorian architecture, this home has been opened up and extended at ground-floor level to create a space tailored for modern living.
Beyond the entrance porch you’re greeted by a generous 22-foot reception room, complete with an attractive bay window and practical understairs storage - ideal for coats, shoes and everyday essentials.
To the rear, the kitchen and dining area sits within the extension, leading to a shower room which could easily serve as a dedicated utility space or be incorporated to form an even larger open-plan kitchen/diner, depending on preference.
The first floor offers three bedrooms and a shower room, with the principal bedroom spanning the full width of the property. This impressive main bedroom benefits from three fitted double wardrobes, providing excellent storage, taking full advantage of the high ceilings and space on offer.
The loft offers excellent storage and perhaps further potential to extend (STPC) To the rear, the property enjoys a low-maintenance, west-facing garden, perfectly positioned to capture the afternoon sun.
Mature trees provide a pleasant sense of privacy and greenery, while a useful storage shed offers additional practicality. The property is offered to the market with no onward chain.
EPC Rating: D62
Council Tax Band: C
An Anti-Money Laundering fee will be applicable to all purchasers at a cost of £5.00 per person.
-
Share this Property
View
Council Tax Band
Band C
Parking
Ask Agent
Garden
Ask Agent
Accessibility
Ask Agent
Tenure
Freehold
Electric
Ask Agent
Water
Ask Agent
Heating
Ask Agent
Broadband
Ask Agent
Sewerage
Ask Agent
Private rights of way
Ask Agent
Public rights of way
Ask Agent
Listed property
Ask Agent
Restrictions
Ask Agent
Flooded in last 5 years
Ask Agent
Flood defenses
Ask Agent
Source of flood
Ask Agent

