< Back to search results
Cadogan Gardens, South Woodford
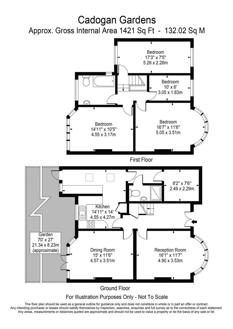
*SOLD BY PETTY SON & PRESTWICH* Petty Son & Prestwich are delighted to offer for sale this superb four-bedroom terraced home, located in the highly sought-after Nightingale Estate being. This generous residence offers versatile accommodation across two reception rooms, a convenient ground floor shower room, and a beautifully proportioned rear garden.
- Four-bedroom family home
- Popular Nightingale Estate
- Well-presented throughout
- Bathroom and shower room
- Two large receptions
- Extended kitchen
- Room to further extend into loft and to the rear (STPC)
- Beautiful rear garden
- Off road parking and bike storage
- 0.3 Miles to South Woodford Station
*SOLD BY PETTY SON & PRESTWICH* Perfectly positioned just 0.3 miles from South Woodford Central Line Station and the vibrant George Lane, residents enjoy easy access to an eclectic array of shops, cafes, and popular restaurants. The property also lies just 0.3 miles away on foot from the Ofsted ‘Outstanding’-rated Nightingale Primary School, making it an exceptional choice for families. Further transport connections include Wanstead Central Line Station (1.3 miles), comprehensive local bus routes, and excellent road links via the M11, M25, and North Circular – ensuring seamless travel across London and beyond.
Boasting an impressive wide frontage, with ample off-road parking, this home’s attractive façade, centred around a welcoming doorway framed by an open porch, provides an elegant introduction to the property. Upon entering the central hallway, one is immediately struck by the sense of space and flow, with direct access to both principal reception rooms.
To the front, the sitting room features a large bay window, fitted with wooden shutters, that bathes the space in natural light, complemented by a handsome central fireplace that adds warmth and character. To the rear, the formal dining room mirrors this charm, also benefitting from a central fireplace and enjoying seamless access to the garden patio through French doors – perfect for both intimate entertaining and relaxed family living.
The contemporary kitchen, thoughtfully extended to the side, offers a superb blend of style and practicality. A striking exposed brick feature wall adds a touch of industrial flair, whilst containing a central bespoke granite peninsula and work surfaces provides also casual breakfast bar seating for two – perfect for informal dining or morning coffee.
Generous countertop space and ample cabinetry, along with an existing pantry, ensure excellent functionality, with accommodation for a sizeable range cooker. There remains exciting scope for further enhancement, with the potential to extend to the rear (STPC), allowing future owners to create a substantially larger open-plan kitchen/dining area tailored to modern family living. A small rear lobby leads from the kitchen to a well-appointed ground floor shower room with W.C., as well as a convenient storeroom – ideal for additional household storage or utility needs.
Moving to the first floor, there are three generous double bedrooms, a fourth single bedroom which is currently utilised as a home office, and contemporary family bathroom on offer.
The loft provides further opportunity to extend to create further accommodation if desired (STPC).
The rear garden has been beautifully manicured with a central lawn, edged by central flower beds and bookended by two patios – perfect for al-fresco dining during the warmer months. A large outbuilding to the rear provides ample storage but could be reconsidered as the siting of a well-proportioned home-office or gym.
EPC Rating: D66
Council Tax Band: F
-
Share this Property
View
Council Tax Band
Band F
Parking
Ask Agent
Garden
Ask Agent
Accessibility
Ask Agent
Tenure
Freehold
Electric
Ask Agent
Water
Ask Agent
Heating
Ask Agent
Broadband
Ask Agent
Sewerage
Ask Agent
Private rights of way
Ask Agent
Public rights of way
Ask Agent
Listed property
Ask Agent
Restrictions
Ask Agent
Flooded in last 5 years
Ask Agent
Flood defenses
Ask Agent
Source of flood
Ask Agent

