< Back to search results
Brook Road, Buckhurst Hill
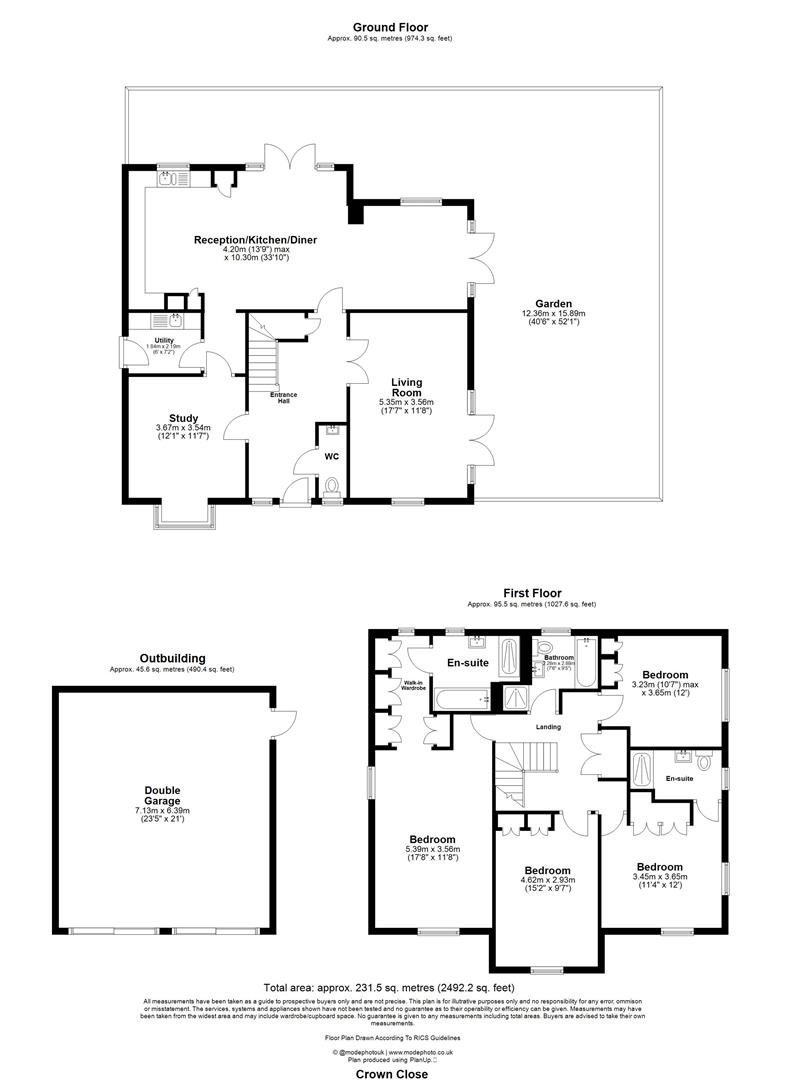
Petty Son & Prestwich are proud to present this striking double-fronted detached home, offering four double bedrooms, three bath/shower rooms and a substantial double garage, set within an exclusive development of just fourteen properties.
- Double fronted detached residence
- Small cul-de-sac of just 14 homes
- Four generous double bedrooms
- Principal suite with dressing area and en-suite bathroom
- Further en-suite, contemporary family bathroom and guest W.C
- In-built wardrobes to all rooms
- Wrap around garden
- Double garage and driveway
- Formal lounge and huge kitchen/dining/family room
- Dedicated home office
Tucked away towards the rear of this private enclave, this impressive home, built in 2012, delivers just over 2,000 sq. ft. of well-balanced, thoughtfully designed accommodation, plus an additional 490 sq. ft. within the double garage.
Perfectly positioned for those who want greenery without compromising on convenience, the vast open spaces of Epping Forest and the Lee Valley are close by, ideal for weekend walks and outdoor living. Meanwhile, Chingford, Woodford and Loughton provide a great mix of independent cafés, restaurants and everyday amenities. Excellent local schooling is also within easy reach, including St John’s C of E Primary School (0.3 miles), alongside Bancroft’s, Trinity Catholic High School and Heathcote School & Science College.
The property opens into a wide and welcoming entrance hall, immediately setting a sense of space. To the front, a well-proportioned formal reception room enjoys double doors onto the garden, while a dedicated home office offers a practical work-from-home solution. A guest cloakroom completes the ground floor layout.
To the rear sits the real focal point of the home; a 33’10” open-plan kitchen, dining and family space designed for modern living. With two sets of doors opening onto the wrap-around garden, this room is filled with natural light and offers excellent flexibility for entertaining or relaxed day-to-day family life. The contemporary kitchen is positioned to one end, with a separate utility room keeping appliances and storage neatly out of sight.
Upstairs, a bright landing leads to four spacious double bedrooms, all featuring bespoke full-height fitted wardrobes. A sleek en-suite shower rooms services one double rooms, while the principal suite enjoys a walk-in dressing area and a spacious en-suite with both bath and separate shower. A well-appointed family bathroom, also offering bath and shower, serves the remaining bedrooms.
Outside, the double garage and driveway provide generous parking and storage. The wrap-around garden has been landscaped with a large patio area for entertaining, leading to a lawn bordered by neatly maintained beds, offering privacy and plenty of space for families or summer gatherings.
EPC Rating: C80
Council Tax Band: G
An Anti-Money Laundering fee will be applicable to all purchasers at a cost of £18.00 per person.
-
Share this Property
View
Council Tax Band
Band G
Parking
Ask Agent
Garden
Ask Agent
Accessibility
Ask Agent
Tenure
Freehold
Electric
Ask Agent
Water
Ask Agent
Heating
Ask Agent
Broadband
Ask Agent
Sewerage
Ask Agent
Private rights of way
Ask Agent
Public rights of way
Ask Agent
Listed property
Ask Agent
Restrictions
Ask Agent
Flooded in last 5 years
Ask Agent
Flood defenses
Ask Agent
Source of flood
Ask Agent

