< Back to search results
Leybourne Road, Leytonstone
Moments from the sprawling greenery of Bushwood and just half a mile on foot to Leytonstone Station, this two double bedroom, period garden flat is idyllically situated.
- Two double bedrooms
- Desirable Bushwood location
- Chain free
- Private garden
- Period features
- 0.5 miles for Leytonstone Central line Station
- Share of Freehold with long lease
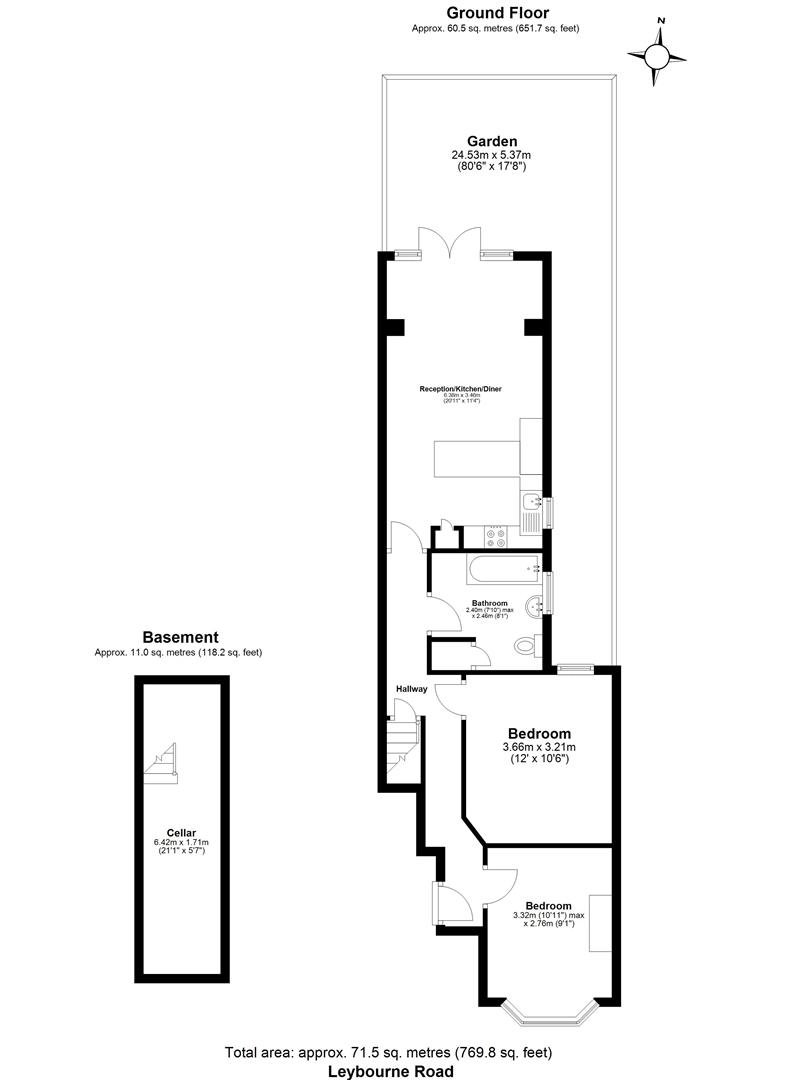
Just a stone’s throw from the green expanse of Bushwood and only half a mile on foot from Leytonstone Station, this period garden flat is perfectly placed. Set towards the quieter end of Leybourne Road in the sought-after Bushwood area of Leytonstone, the property sits just a few hundred feet from Bushwood itself, giving you wide-open routes through woodland towards Aldersbrook and Wanstead Flats. Head the other way for half a mile or less, and you’re at Leytonstone Station with quick links into central London, or popping into one of the local independent coffee spots or the M&S Food Hall for your essentials. Set within a charming period building, this spacious apartment occupies the entire ground floor of the original house, offering generous proportions throughout. Two double bedrooms sit at the front of the property; one featuring original plasterwork, a bay window, and a retained chimney breast, while the second overlooks the private rear garden and benefits from a removed chimney breast, creating a more open feel. The bathroom, located just beyond, is generously sized and has a window to allow for natural light and ventilation. To the rear, the apartment opens into a bright, open-plan space, with a modern kitchen complete with breakfast bar flowing into a sitting and dining area. Double doors lead out to a private rear garden, which includes a large side return, patio, lawn, storage shed, and raised planting at the rear. Additional benefits include access to a private cellar, perfect for storage, and a share of the freehold.
Lease Information: 999 years from 29 September 1988 (961 years currently remain)
Service Charge: N/A
Ground Rent: N/A
EPC Rating: C69
Council Tax Band: C
An Anti-Money Laundering fee will be applicable to all purchasers at a cost of £18.00 per person.
-
Share this Property
View
Council Tax Band
Band C
Parking
Ask Agent
Garden
Ask Agent
Accessibility
Ask Agent
Tenure
Ask Agent
Electric
Ask Agent
Water
Ask Agent
Heating
Ask Agent
Broadband
Ask Agent
Sewerage
Ask Agent
Private rights of way
Ask Agent
Public rights of way
Ask Agent
Listed property
Ask Agent
Restrictions
Ask Agent
Flooded in last 5 years
Ask Agent
Flood defenses
Ask Agent
Source of flood
Ask Agent

