< Back to search results
Hermon Hill, Wanstead
Petty Son and Prestwich are delighted to offer for sale this beautifully presented, one double bedroom, period conversion set in Central Wanstead.
- One double bedroom
- Victorian conversion
- Raised ground floor
- Contemporary bathroom and kitchen
- Well-kept communal gardens
- Central Wanstead
- 0.2 miles from Snaresbrook station
- Chain free
This home is exceptionally close to the highly sought after High Street, with its array of shops, bars, restaurants, and parks, as well as being just 0.2 miles from Snaresbrook and 0.5miles to Wanstead Central Line stations. Hermon Hill is renowned for being lined with stunning Victorian properties and when approaching this beautifully maintained conversion, the impressive brick frontage and stunning bay windows do not disappoint!
The home is in good condition throughout, ensuring the new owners can move straight in, unpack, and relax.
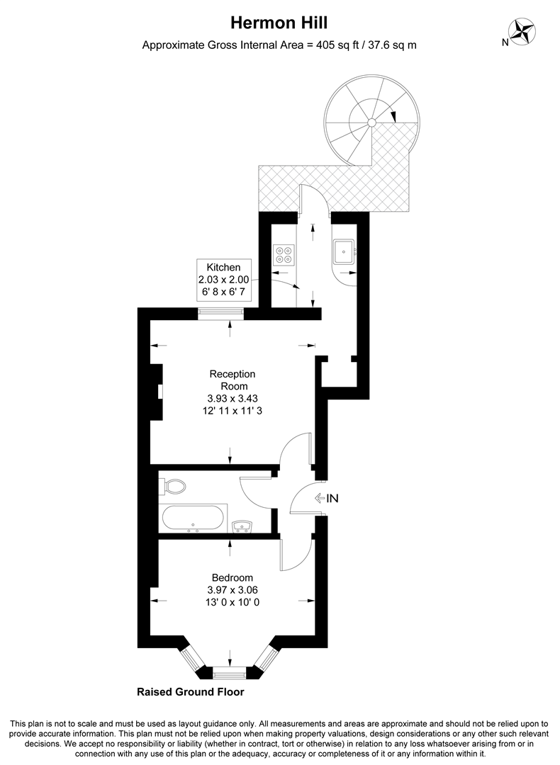
The accommodation is comprised of a large bedroom flooded with natural light thanks to the large bay window. There is also a lounge/dining room with views over the rear garden, a classic crisp white bathroom with an overhead shower and impressive marble wall tiles and a contemporary kitchen that leads out a small balcony area and down to the large, well-kept communal garden.
EPC Rating: C72
Council Tax Band: B
Lease Information: 999 years from 7th July 2017 (991 years currently remaining)
Service Charge: £600 per annum (reviewed annually)
Ground Rent: N/A
An Anti-Money Laundering fee will be applicable to all purchasers at a cost of £18.00 per person.
Reception Room 12'10" x 11'3" (3.93 x 3.43 (12'10" x 11'3"))
Kitchen 6'7" x 6'6" (2.03 x 2.0 (6'7" x 6'6"))
Bedroom 13'0" x 10'0" (3.97 x 3.06 (13'0" x 10'0"))
-
Share this Property
View
Council Tax Band
Band B
Parking
Ask Agent
Garden
Ask Agent
Accessibility
Ask Agent
Tenure
Ask Agent
Electric
Ask Agent
Water
Ask Agent
Heating
Ask Agent
Broadband
Ask Agent
Sewerage
Ask Agent
Private rights of way
Ask Agent
Public rights of way
Ask Agent
Listed property
Ask Agent
Restrictions
Ask Agent
Flooded in last 5 years
Ask Agent
Flood defenses
Ask Agent
Source of flood
Ask Agent

