< Back to search results
Spratt Hall Road, Wanstead
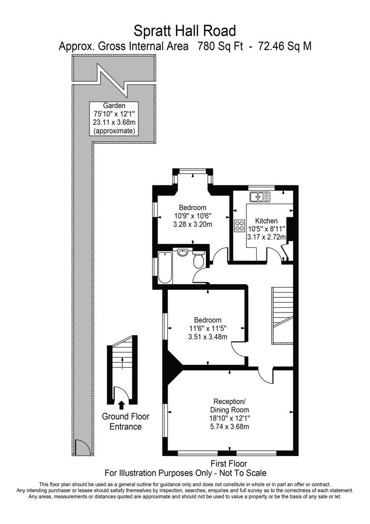
Petty Son & Prestwich are thrilled to present this beautifully proportioned two-bedroom first floor apartment in central Wanstead with private, sunny garden. Enviably positioned on the iconic Spratt Hall Road, right in the heart of Wanstead, this home perfectly balances character, light, and location.
- First floor period conversion
- Iconic Spratt Hall Road in central Wanstead
- Two bedrooms
- Separate kitchen
- Private, sunny garden
- Summer house
- 0.2 Miles to Wanstead Station
- Moments from Wanstead High Street
- Close to a range of schools and nurseries
Tucked just off Wanstead High Street, this elegant apartment enjoys immediate access to an array of cafés, boutiques, and restaurants, while Christchurch Green sits just moments away – ideal for a weekend stroll or picnic. Wanstead Underground Station (Central Line) is only 0.2 miles away, providing swift access into Central London, while the leafy surrounds of Christchurch Green and George Green are within striking distance.
Those looking to start a family will appreciate the number of nurseries and Primary Schools available; with six nursery options, including an outstanding Montessori, within 0.3 miles, and four Ofsted rated good or outstanding primary schools within 0.9 miles of the home.
Set within an attractive period conversion of just two apartments, this home occupies the entire first floor, giving a wonderfully spacious and well-balanced layout.
To the rear, a bright kitchen and adjacent second bedroom overlook the gardens, creating a peaceful retreat from the buzz of the High Street.
The bathroom is fully tiled and features a large window, ensuring plenty of natural light and ventilation. Moving through to the front of the property, the principal bedroom offers generous proportions, high ceilings, and ample space for fitted wardrobes.
The impressive lounge/diner stretches across the full width of the home, showcasing four beautiful, duel aspect, sash windows, exposed floorboards, and a welcoming sense of character -a perfect space for both relaxing and entertaining.
Outside, the private garden is accessed via a secure side gate and offers a charming, cottage style setting complete with mature planting. The summerhouse provides a versatile space to work from home, unwind, or enjoy warm summer evenings.
Residents permit parking is available outside with electric charging points available along the road.
Lease Information: 165 years from 25th December 1986 (126 years currently remain)
Service Charge: N/A
Ground Rent: £400 per annum
EPC Rating: D56
Council Tax Band: C
An Anti-Money Laundering fee will be applicable to all purchasers at a cost of £5.00 per person.
-
Share this Property
View
Council Tax Band
Band C
Parking
Ask Agent
Garden
Ask Agent
Accessibility
Ask Agent
Tenure
Leasehold
Electric
Ask Agent
Water
Ask Agent
Heating
Ask Agent
Broadband
Ask Agent
Sewerage
Ask Agent
Ground rent
£400
Annual service charge
Ask Agent
Length of lease
126 years left
Private rights of way
Ask Agent
Public rights of way
Ask Agent
Listed property
Ask Agent
Restrictions
Ask Agent
Flooded in last 5 years
Ask Agent
Flood defenses
Ask Agent
Source of flood
Ask Agent

